Building Summary

Data last updated on: 3/13/2026     Ownership current as of: 3/9/2026     Tax Year: 2026
REID 160431

PIN # 0843-51-0724

Location Address Property Description
3417 GLENN RD PROP-WEAVER CATHRYNE PL:000000-000000
   
Property Owner Owner's Mailing Address
DIAZ, ADOLFO PILAR LOPEZ
3417 GLENN RD
DURHAM NC 27704
Parcel
Buildings
Misc Improvements
Land
Deeds
Notes
Sales
Photos
Map
Building Location Address
3417 GLENN RD
Building Description
RESMS-RES-MS-OR-EQ
Card   of  2
Bldg Type RESIDENTIAL
Units 1
Living Area (SQFT) 2314
Number of Stories 1.00
Style RAN-RANCH
Foundation 04-P-FOOTING/CRWL-SP
Exterior 02-BRICK
Const Type
Heating 05-PACKAGE-HEAT/COOL
Air Cond
Plumbing Baths (Full):   3
Baths (Half):   0
Extra Fixtures:   0
Total Plumbing Fixtures:   9 
Bedrooms 3
Main Body (SQFT) 2314
Year Built 1955
Additions 3
Effective Year 1955
Remodeled 0
Interior Adj.
Other Features
Building Total & Improvement Details

Grade C 100%
Percentage Complete 100
Total Adjusted Replacement Cost New $397,068
Physical Depreciation (% Bad) 0%
Depreciated Value $218,387
Economic Depreciation (% Bad) 0%
Functional Depreciation (% Bad) 0%
Total Depreciated Value $218,387
Market Area Factor 1.00
Building Value $218,387
Misc Improvements Value $27,335
Total Improvement Value $245,722

Assessed Land Value $192,416
   
Assessed Total Value $444,878



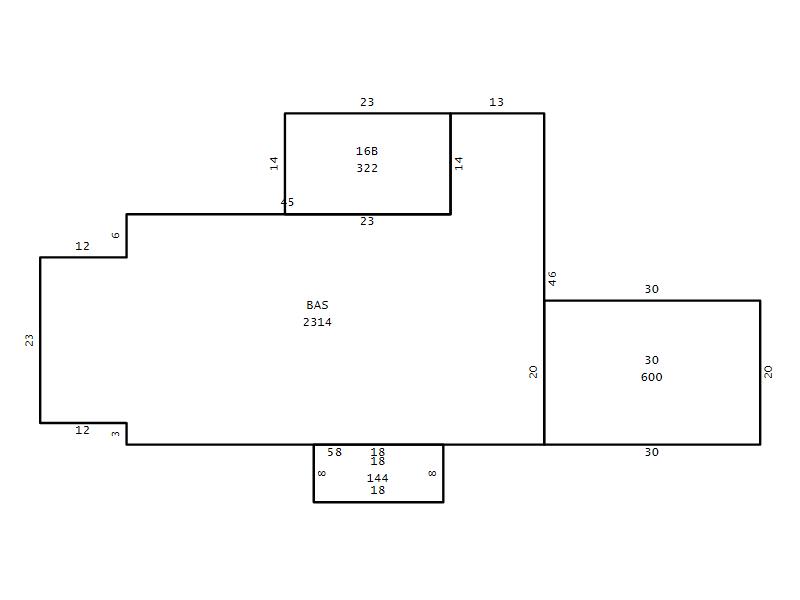
Addition Summary 
StoryTypeCodeArea
1.00 Concrete Slab 16B 322
1.00 Covered Porch 18 144
1.00 Carport 30 600
 
Other Improvements 
UnitsDescriptionItemCodeYear% BadValue
464 SIZE Shop 1975 70 5591
320 SIZE Patio 2001 0 5954
480 UNITS Garage Frame 2001 40 15362
380 UNITS Lean To 1975 75 428
 


Building Sketch
Photograph
Building Sketch Building Photo
(Click sketch for bigger image)




Copyright © 2022 Durham County, North Carolina.