Building Summary

Data last updated on: 4/2/2026     Ownership current as of: 3/30/2026     Tax Year: 2026
REID 160437

PIN # 0843-53-9644

Location Address Property Description
2505 DAVIE RD PROP-WEAVER LEON & CATHRY NE/LT#03 PL:000038-000131
   
Property Owner Owner's Mailing Address
MARTINEZ, ELIENAIT TORRES
2505 DAVIE RD
DURHAM NC 27704
Parcel
Buildings
Misc Improvements
Land
Deeds
Notes
Sales
Photos
Map
Building Location Address
2505 DAVIE RD
Building Description
RESMS-RES-MS-OR-EQ
Card   of  1
Bldg Type RESIDENTIAL
Units 1
Living Area (SQFT) 1040
Number of Stories 1.00
Style RAN-RANCH
Foundation 04-P-FOOTING/CRWL-SP
Exterior 02-BRICK
Const Type
Heating 05-PACKAGE-HEAT/COOL
Air Cond
Plumbing Baths (Full):   1
Baths (Half):   0
Extra Fixtures:   0
Total Plumbing Fixtures:   3 
Bedrooms 3
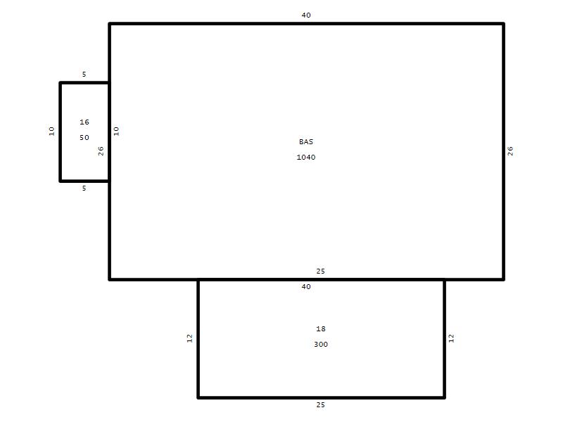
Main Body (SQFT) 1040
Year Built 1959
Additions 2
Effective Year 1959
Remodeled 0
Interior Adj.
Other Features
Building Total & Improvement Details

Grade C-5 95%
Percentage Complete 100
Total Adjusted Replacement Cost New $209,642
Physical Depreciation (% Bad) 0%
Depreciated Value $136,267
Economic Depreciation (% Bad) 0%
Functional Depreciation (% Bad) 0%
Total Depreciated Value $136,267
Market Area Factor 1.00
Building Value $136,267
Misc Improvements Value $18,123
Total Improvement Value $154,390

Assessed Land Value $91,250
   
Assessed Total Value $245,640



Addition Summary 
StoryTypeCodeArea
1.00 Frame Deck 16 50
1.00 Covered Porch 18 300
 
Other Improvements 
UnitsDescriptionItemCodeYear% BadValue
528 SIZE Garage Frame 2002 40 16898
18x20 DIMENSIONS Prefab Metal Car Shed 1959 50 905
12x16 DIMENSIONS Shed (Open Pole) 1959 75 320
 


Building Sketch
Photograph
Building Sketch Building Photo
(Click sketch for bigger image)




Copyright © 2022 Durham County, North Carolina.