Building Summary

Data last updated on: 4/2/2026     Ownership current as of: 3/30/2026     Tax Year: 2026
REID 160760

PIN # 0842-42-0692

Location Address Property Description
6 JESSICA CT MILAN WOODS/PH:01/BLK:B/L T#61 PL:000115-000116
   
Property Owner Owner's Mailing Address
STAR BORROWER SFR6 LP
16220 N SCOTTSDALE RD STE 450
SCOTTSDALE AZ 85254
Parcel
Buildings
Misc Improvements
Land
Deeds
Notes
Sales
Photos
Map
Building Location Address
6 JESSICA CT
Building Description
RESFR-RES-FRM-OR-EQ
Card   of  1
Bldg Type RESIDENTIAL
Units 1
Living Area (SQFT) 1684
Number of Stories 2.00
Style CAP-CAPE-COD
Foundation 04-P-FOOTING/CRWL-SP
Exterior 09-HARD-B/CEMENTBRD
Const Type
Heating 05-PACKAGE-HEAT/COOL
Air Cond
Plumbing Baths (Full):   2
Baths (Half):   1
Extra Fixtures:   0
Total Plumbing Fixtures:   8 
Bedrooms 3
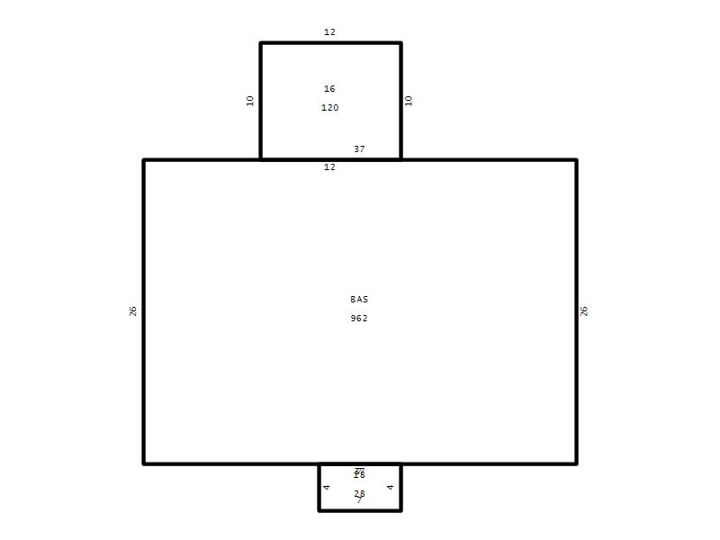
Main Body (SQFT) 962
Year Built 1987
Additions 3
Effective Year 1987
Remodeled 0
Interior Adj.
Other Features
Building Total & Improvement Details

Grade C+ 110%
Percentage Complete 100
Total Adjusted Replacement Cost New $313,119
Physical Depreciation (% Bad) 0%
Depreciated Value $269,282
Economic Depreciation (% Bad) 0%
Functional Depreciation (% Bad) 0%
Total Depreciated Value $269,282
Market Area Factor 1.00
Building Value $269,282
Misc Improvements Value
Total Improvement Value $269,282

Assessed Land Value $74,375
   
Assessed Total Value $343,657



Addition Summary 
StoryTypeCodeArea
1.00 Frame Deck 16 120
1.00 Covered Porch 18 28
1.00 Res Frame 2Nd Flr FR02 722
 
Other Improvements 
 


Building Sketch
Photograph
Building Sketch Building Photo
(Click sketch for bigger image)




Copyright © 2022 Durham County, North Carolina.