Building Summary

Data last updated on: 4/2/2026     Ownership current as of: 3/30/2026     Tax Year: 2026
REID 160768

PIN # 0842-42-1531

Location Address Property Description
1404 MILAN ST MILAN WOODS/PH:01/BLK:B/L T#69 PL:000115-000016
   
Property Owner Owner's Mailing Address
RODRIGUEZ, YANIRA ISABEL
3521 ARLINGTON ST
DURHAM NC 27707
Parcel
Buildings
Misc Improvements
Land
Deeds
Notes
Sales
Photos
Map
Building Location Address
1404 MILAN ST
Building Description
RESFR-RES-FRM-OR-EQ
Card   of  1
Bldg Type RESIDENTIAL
Units 1
Living Area (SQFT) 1684
Number of Stories 2.00
Style CAP-CAPE-COD
Foundation 04-P-FOOTING/CRWL-SP
Exterior 09-HARD-B/CEMENTBRD
Const Type
Heating 05-PACKAGE-HEAT/COOL
Air Cond
Plumbing Baths (Full):   2
Baths (Half):   0
Extra Fixtures:   0
Total Plumbing Fixtures:   6 
Bedrooms 3
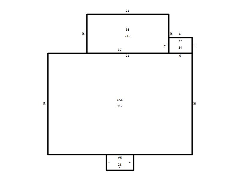
Main Body (SQFT) 962
Year Built 1987
Additions 4
Effective Year 1987
Remodeled 0
Interior Adj.
Other Features
Building Total & Improvement Details

Grade C+ 110%
Percentage Complete 100
Total Adjusted Replacement Cost New $319,869
Physical Depreciation (% Bad) 0%
Depreciated Value $227,107
Economic Depreciation (% Bad) 0%
Functional Depreciation (% Bad) 0%
Total Depreciated Value $227,107
Market Area Factor 1.00
Building Value $227,107
Misc Improvements Value
Total Improvement Value $227,107

Assessed Land Value $72,500
   
Assessed Total Value $299,607



Addition Summary 
StoryTypeCodeArea
1.00 Frame Deck 16 210
1.00 Covered Porch 18 28
1.00 Storage Utility 32 24
1.00 Res Frame 2Nd Flr FR02 722
 
Other Improvements 
UnitsDescriptionItemCodeYear% BadValue
7x7 DIMENSIONS Shed Personal Property 1987 75
 


Building Sketch
Photograph
Building Sketch Building Photo
(Click sketch for bigger image)




Copyright © 2022 Durham County, North Carolina.