Building Summary

Data last updated on: 4/2/2026     Ownership current as of: 3/30/2026     Tax Year: 2026
REID 160817

PIN # 0842-32-8853

Location Address Property Description
1431 MILAN ST MILAN WOODS/PH:01/BLK:A/L T#57 PL:000114-000148
   
Property Owner Owner's Mailing Address
ARROYO, JOSE GREGORIO COBOS;BACCA, MARIA A GARAY
1431 MILAN ST
DURHAM NC 27704
Parcel
Buildings
Misc Improvements
Land
Deeds
Notes
Sales
Photos
Map
Building Location Address
1431 MILAN ST
Building Description
RESFR-RES-FRM-OR-EQ
Card   of  1
Bldg Type RESIDENTIAL
Units 1
Living Area (SQFT) 1562
Number of Stories 2.00
Style CON-CONVENTIONAL
Foundation 04-P-FOOTING/CRWL-SP
Exterior 09-HARD-B/CEMENTBRD
Const Type
Heating 05-PACKAGE-HEAT/COOL
Air Cond
Plumbing Baths (Full):   2
Baths (Half):   1
Extra Fixtures:   0
Total Plumbing Fixtures:   8 
Bedrooms 3
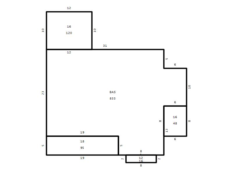
Main Body (SQFT) 833
Year Built 1987
Additions 5
Effective Year 1987
Remodeled 0
Interior Adj.
Other Features
Building Total & Improvement Details

Grade C+ 110%
Percentage Complete 100
Total Adjusted Replacement Cost New $307,404
Physical Depreciation (% Bad) 0%
Depreciated Value $218,257
Economic Depreciation (% Bad) 0%
Functional Depreciation (% Bad) 0%
Total Depreciated Value $218,257
Market Area Factor 1.00
Building Value $218,257
Misc Improvements Value $391
Total Improvement Value $218,648

Assessed Land Value $77,500
   
Assessed Total Value $296,148



Addition Summary 
StoryTypeCodeArea
1.00 Overhang 01 16
1.00 Frame Deck 16 120
1.00 Covered Porch 18 95
1.00 Frame Deck 16 48
1.00 Res Frame 2Nd Flr FR02 713
 
Other Improvements 
UnitsDescriptionItemCodeYear% BadValue
16x10 DIMENSIONS Shed (Open Pole) 1987 75 391
 


Building Sketch
Photograph
Building Sketch Building Photo
(Click sketch for bigger image)




Copyright © 2022 Durham County, North Carolina.