Building Summary

Data last updated on: 4/2/2026     Ownership current as of: 3/30/2026     Tax Year: 2026
REID 160905

PIN # 0842-23-6045

Location Address Property Description
2315 CYNTHIA DR MILAN WOODS/PH:03/SEC:C/L T#069 PL:000119-000121
   
Property Owner Owner's Mailing Address
FALTASS, IMAN BOTROS
2315 CYNTHIA DR
DURHAM NC 27704
Parcel
Buildings
Misc Improvements
Land
Deeds
Notes
Sales
Photos
Map
Building Location Address
2315 CYNTHIA DR
Building Description
RESFR-RES-FRM-OR-EQ
Card   of  1
Bldg Type RESIDENTIAL
Units 1
Living Area (SQFT) 1700
Number of Stories 2.00
Style CAP-CAPE-COD
Foundation 04-P-FOOTING/CRWL-SP
Exterior 08-VINYL/ALUMINUM
Const Type
Heating 05-PACKAGE-HEAT/COOL
Air Cond
Plumbing Baths (Full):   2
Baths (Half):   1
Extra Fixtures:   0
Total Plumbing Fixtures:   8 
Bedrooms 3
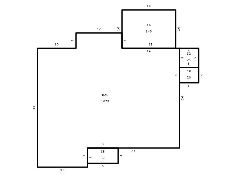
Main Body (SQFT) 1075
Year Built 1990
Additions 5
Effective Year 1990
Remodeled 0
Interior Adj.
Other Features
Building Total & Improvement Details

Grade C+ 110%
Percentage Complete 100
Total Adjusted Replacement Cost New $325,116
Physical Depreciation (% Bad) 0%
Depreciated Value $234,084
Economic Depreciation (% Bad) 0%
Functional Depreciation (% Bad) 0%
Total Depreciated Value $234,084
Market Area Factor 1.00
Building Value $234,084
Misc Improvements Value
Total Improvement Value $234,084

Assessed Land Value $74,375
   
Assessed Total Value $308,459



Addition Summary 
StoryTypeCodeArea
1.00 Frame Deck 16 140
1.00 Storage Utility 32 25
1.00 Covered Porch 18 32
1.00 Covered Porch 18 20
1.00 Res Frame 2Nd Flr FR02 625
 
Other Improvements 
 


Building Sketch
Photograph
Building Sketch Building Photo
(Click sketch for bigger image)




Copyright © 2022 Durham County, North Carolina.