Building Summary

Data last updated on: 4/2/2026     Ownership current as of: 3/30/2026     Tax Year: 2026
REID 160955

PIN # 0842-22-9677

Location Address Property Description
2408 CYNTHIA DR MILAN WOODS/PH:03/SEC:B/L T#105 REV PL:000119-000160
   
Property Owner Owner's Mailing Address
HAUGEN, TAMMIE
2408 CYNTHIA DR
DURHAM NC 27704
Parcel
Buildings
Misc Improvements
Land
Deeds
Notes
Sales
Photos
Map
Building Location Address
2408 CYNTHIA DR
Building Description
RESFR-RES-FRM-OR-EQ
Card   of  1
Bldg Type RESIDENTIAL
Units 1
Living Area (SQFT) 1719
Number of Stories 2.00
Style CON-CONVENTIONAL
Foundation 04-P-FOOTING/CRWL-SP
Exterior 08-VINYL/ALUMINUM
Const Type
Heating 05-PACKAGE-HEAT/COOL
Air Cond
Plumbing Baths (Full):   2
Baths (Half):   1
Extra Fixtures:   0
Total Plumbing Fixtures:   8 
Bedrooms 4
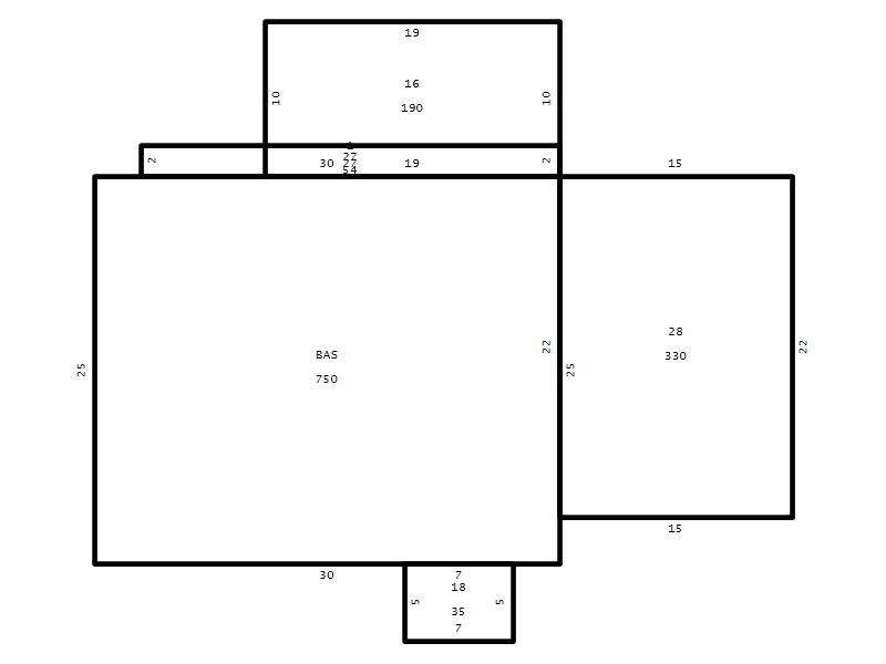
Main Body (SQFT) 750
Year Built 1989
Additions 6
Effective Year 1989
Remodeled 0
Interior Adj.
Other Features
Building Total & Improvement Details

Grade C+ 110%
Percentage Complete 100
Total Adjusted Replacement Cost New $352,263
Physical Depreciation (% Bad) 0%
Depreciated Value $302,946
Economic Depreciation (% Bad) 0%
Functional Depreciation (% Bad) 0%
Total Depreciated Value $302,946
Market Area Factor 1.00
Building Value $302,946
Misc Improvements Value
Total Improvement Value $302,946

Assessed Land Value $74,375
   
Assessed Total Value $377,321



Addition Summary 
StoryTypeCodeArea
1.00 Overhang 01 54
1.00 Frame Deck 16 190
1.00 Covered Porch 18 35
1.00 Garage 28 330
1.00 Res Frame 2Nd Flr FR02 750
1.00 Res Frm 2Nd Flr Over Garg FR02 165
 
Other Improvements 
 


Building Sketch
Photograph
Building Sketch Building Photo
(Click sketch for bigger image)




Copyright © 2022 Durham County, North Carolina.