Building Summary

Data last updated on: 4/2/2026     Ownership current as of: 3/30/2026     Tax Year: 2026
REID 160960

PIN # 0842-22-7655

Location Address Property Description
7 NADEAU CT MILAN WOODS/PH:03/SEC:C/L T#100 PL:000119-000121
   
Property Owner Owner's Mailing Address
POPEK, THOMAS
7 NADEAU CT
DURHAM NC 27704
Parcel
Buildings
Misc Improvements
Land
Deeds
Notes
Sales
Photos
Map
Building Location Address
7 NADEAU CT
Building Description
RESFR-RES-FRM-OR-EQ
Card   of  1
Bldg Type RESIDENTIAL
Units 1
Living Area (SQFT) 1518
Number of Stories 2.00
Style CON-CONVENTIONAL
Foundation 04-P-FOOTING/CRWL-SP
Exterior 09-HARD-B/CEMENTBRD
Const Type
Heating 05-PACKAGE-HEAT/COOL
Air Cond
Plumbing Baths (Full):   2
Baths (Half):   1
Extra Fixtures:   0
Total Plumbing Fixtures:   8 
Bedrooms 3
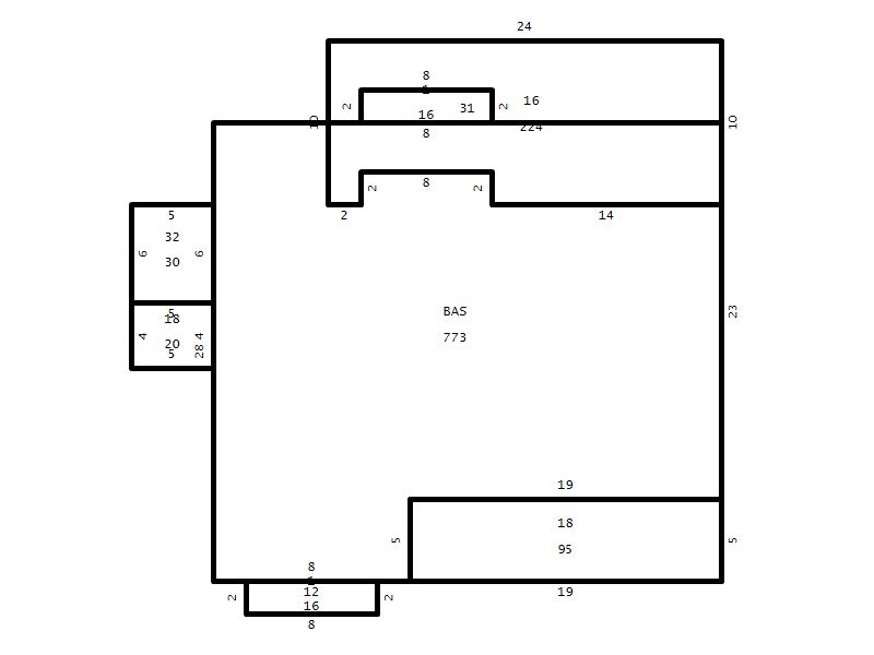
Main Body (SQFT) 773
Year Built 1988
Additions 7
Effective Year 1988
Remodeled 0
Interior Adj.
Other Features
Building Total & Improvement Details

Grade C+ 110%
Percentage Complete 100
Total Adjusted Replacement Cost New $305,532
Physical Depreciation (% Bad) 0%
Depreciated Value $216,928
Economic Depreciation (% Bad) 0%
Functional Depreciation (% Bad) 0%
Total Depreciated Value $216,928
Market Area Factor 1.00
Building Value $216,928
Misc Improvements Value
Total Improvement Value $216,928

Assessed Land Value $80,000
   
Assessed Total Value $296,928



Addition Summary 
StoryTypeCodeArea
1.00 Overhang 01 16
1.00 Storage Utility 32 30
1.00 Frame Deck 16 224
1.00 Covered Porch 18 95
1.00 Covered Porch 18 20
1.00 Overhang 01 16
1.00 Res Frame 2Nd Flr FR02 713
 
Other Improvements 
 


Building Sketch
Photograph
Building Sketch Building Photo
(Click sketch for bigger image)




Copyright © 2022 Durham County, North Carolina.