Building Summary

Data last updated on: 4/2/2026     Ownership current as of: 3/30/2026     Tax Year: 2026
REID 161174

PIN # 0842-40-3089

Location Address Property Description
710 ROCHESTER ST PROP-POPE V F & NOELL H L /LT#27 PL:000019-000106
   
Property Owner Owner's Mailing Address
XIAO, YUAN ZHI
1615 CREIGHTON HALL WAY
DURHAM NC 27703
Parcel
Buildings
Misc Improvements
Land
Deeds
Notes
Sales
Photos
Map
Building Location Address
710 ROCHESTER ST
Building Description
RESFR-RES-FRM-OR-EQ
Card   of  1
Bldg Type RESIDENTIAL
Units 1
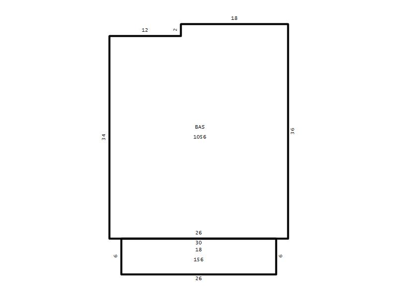
Living Area (SQFT) 1056
Number of Stories 1.00
Style RAN-RANCH
Foundation 04-P-FOOTING/CRWL-SP
Exterior 08-VINYL/ALUMINUM
Const Type
Heating 06-HEAT-PUMP
Air Cond
Plumbing Baths (Full):   1
Baths (Half):   0
Extra Fixtures:   0
Total Plumbing Fixtures:   3 
Bedrooms 2
Main Body (SQFT) 1056
Year Built 1955
Additions 1
Effective Year 1955
Remodeled 0
Interior Adj.
Other Features
Building Total & Improvement Details

Grade C- 95%
Percentage Complete 100
Total Adjusted Replacement Cost New $192,415
Physical Depreciation (% Bad) 0%
Depreciated Value $28,862
Economic Depreciation (% Bad) 0%
Functional Depreciation (% Bad) 0%
Total Depreciated Value $28,862
Market Area Factor 1.00
Building Value $28,862
Misc Improvements Value
Total Improvement Value $28,862

Assessed Land Value $96,600
   
Assessed Total Value $125,462



Addition Summary 
StoryTypeCodeArea
1.00 Covered Porch 18 156
 
Other Improvements 
 


Building Sketch
Photograph
Building Sketch Building Photo
(Click sketch for bigger image)




Copyright © 2022 Durham County, North Carolina.