Building Summary

Data last updated on: 3/31/2026     Ownership current as of: 3/26/2026     Tax Year: 2026
REID 161409

PIN # 0841-96-8526

Location Address Property Description
543 CLAYTON RD FLETCHER WOODS/SEC:10/BLK :M/LT#13 & ST CLOSURE PL:000128-000036
   
Property Owner Owner's Mailing Address
IGLESIA LA GREY DE DIOS
2828 TULIP POPLAR CIR
DURHAM NC 27704
Parcel
Buildings
Misc Improvements
Land
Deeds
Notes
Sales
Photos
Map
Building Location Address
543 CLAYTON RD
Building Description
RESMS-RES-MS-OR-EQ
Card   of  1
Bldg Type RESIDENTIAL
Units 1
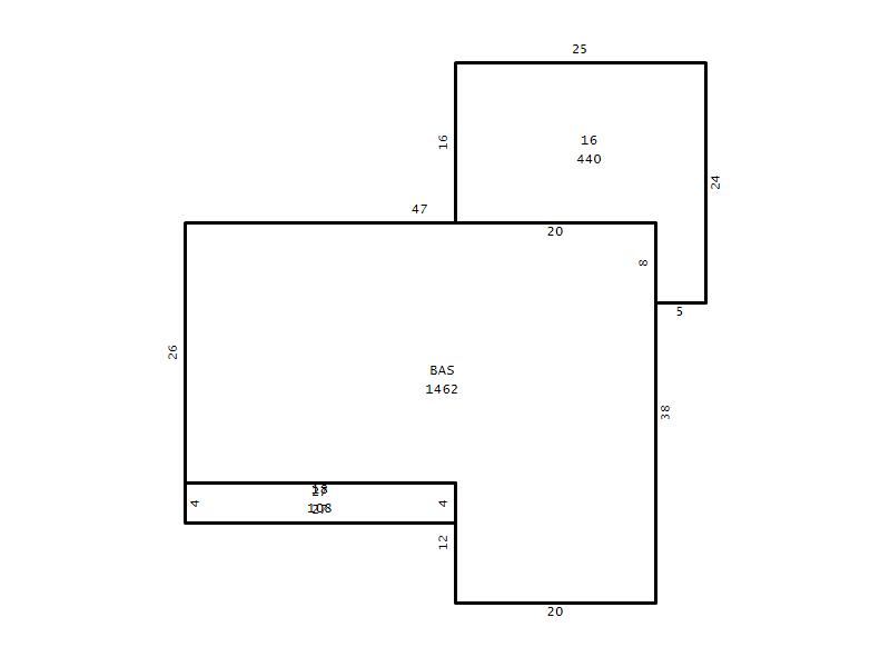
Living Area (SQFT) 1462
Number of Stories 1.00
Style RAN-RANCH
Foundation 04-P-FOOTING/CRWL-SP
Exterior 02-BRICK
Const Type
Heating 05-PACKAGE-HEAT/COOL
Air Cond
Plumbing Baths (Full):   2
Baths (Half):   0
Extra Fixtures:   0
Total Plumbing Fixtures:   6 
Bedrooms 3
Main Body (SQFT) 1462
Year Built 1974
Additions 2
Effective Year 1974
Remodeled 0
Interior Adj.
Other Features
Building Total & Improvement Details

Grade C+ 110%
Percentage Complete 100
Total Adjusted Replacement Cost New $306,398
Physical Depreciation (% Bad) 0%
Depreciated Value $196,095
Economic Depreciation (% Bad) 0%
Functional Depreciation (% Bad) 0%
Total Depreciated Value $196,095
Market Area Factor 1.00
Building Value $196,095
Misc Improvements Value
Total Improvement Value $196,095

Assessed Land Value $73,700
   
Assessed Total Value $269,795



Addition Summary 
StoryTypeCodeArea
1.00 Frame Deck 16 440
1.00 Covered Porch 18 108
 
Other Improvements 
 


Building Sketch
Photograph
Building Sketch Building Photo
(Click sketch for bigger image)




Copyright © 2022 Durham County, North Carolina.