Building Summary

Data last updated on: 3/31/2026     Ownership current as of: 3/26/2026     Tax Year: 2026
REID 161410

PIN # 0841-96-8420

Location Address Property Description
537 CLAYTON RD FLETCHER WOODS/SEC:10/BLK :M/LT#14 & ST CLOSURE PL:000129-000036
   
Property Owner Owner's Mailing Address
HAMILTON, JONATHAN
537 CLAYTON RD
DURHAM NC 27703
Parcel
Buildings
Misc Improvements
Land
Deeds
Notes
Sales
Photos
Map
Building Location Address
537 CLAYTON RD
Building Description
RESMS-RES-MS-OR-EQ
Card   of  1
Bldg Type RESIDENTIAL
Units 1
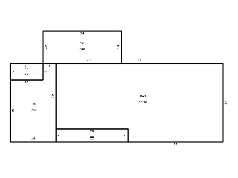
Living Area (SQFT) 1136
Number of Stories 1.00
Style RAN-RANCH
Foundation 04-P-FOOTING/CRWL-SP
Exterior 02-BRICK
Const Type
Heating 05-PACKAGE-HEAT/COOL
Air Cond
Plumbing Baths (Full):   2
Baths (Half):   0
Extra Fixtures:   0
Total Plumbing Fixtures:   6 
Bedrooms 3
Main Body (SQFT) 1136
Year Built 1974
Additions 4
Effective Year 1974
Remodeled 0
Interior Adj.
Other Features
Building Total & Improvement Details

Grade C+ 110%
Percentage Complete 100
Total Adjusted Replacement Cost New $270,894
Physical Depreciation (% Bad) 0%
Depreciated Value $173,372
Economic Depreciation (% Bad) 0%
Functional Depreciation (% Bad) 0%
Total Depreciated Value $173,372
Market Area Factor 1.00
Building Value $173,372
Misc Improvements Value $14,144
Total Improvement Value $187,516

Assessed Land Value $75,350
   
Assessed Total Value $262,866



Addition Summary 
StoryTypeCodeArea
1.00 Frame Deck 16 240
1.00 Covered Porch 18 88
1.00 Carport 30 286
1.00 Storage Utility 32 50
 
Other Improvements 
UnitsDescriptionItemCodeYear% BadValue
576 SIZE Garage Frame 1993 55 13826
10x14 DIMENSIONS Shed (Open Pole) 1974 75 318
 


Building Sketch
Photograph
Building Sketch Building Photo
(Click sketch for bigger image)




Copyright © 2022 Durham County, North Carolina.