Building Summary

Data last updated on: 3/31/2026     Ownership current as of: 3/26/2026     Tax Year: 2026
REID 161419

PIN # 0841-96-2023

Location Address Property Description
404 GREYSTONE DR GREYSTONE/PH:01/LT#47 PL:000128-000081
   
Property Owner Owner's Mailing Address
JOY, SHANNON
404 GREYSTONE DR
DURHAM NC 27703
Parcel
Buildings
Misc Improvements
Land
Deeds
Notes
Sales
Photos
Map
Building Location Address
404 GREYSTONE DR
Building Description
RESFR-RES-FRM-OR-EQ
Card   of  1
Bldg Type RESIDENTIAL
Units 1
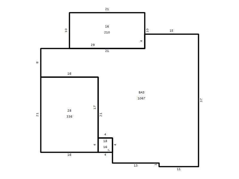
Living Area (SQFT) 1067
Number of Stories 1.00
Style RAN-RANCH
Foundation 04-P-FOOTING/CRWL-SP
Exterior 09-HARD-B/CEMENTBRD
Const Type
Heating 05-PACKAGE-HEAT/COOL
Air Cond
Plumbing Baths (Full):   2
Baths (Half):   0
Extra Fixtures:   0
Total Plumbing Fixtures:   6 
Bedrooms 3
Main Body (SQFT) 1067
Year Built 1996
Additions 3
Effective Year 1996
Remodeled 0
Interior Adj.
Other Features
Building Total & Improvement Details

Grade C+ 110%
Percentage Complete 100
Total Adjusted Replacement Cost New $252,072
Physical Depreciation (% Bad) 0%
Depreciated Value $221,823
Economic Depreciation (% Bad) 0%
Functional Depreciation (% Bad) 0%
Total Depreciated Value $221,823
Market Area Factor 1.00
Building Value $221,823
Misc Improvements Value
Total Improvement Value $221,823

Assessed Land Value $69,300
   
Assessed Total Value $291,123



Addition Summary 
StoryTypeCodeArea
1.00 Frame Deck 16 210
1.00 Covered Porch 18 16
1.00 Garage 28 336
 
Other Improvements 
 


Building Sketch
Photograph
Building Sketch Building Photo
(Click sketch for bigger image)




Copyright © 2022 Durham County, North Carolina.