Building Summary

Data last updated on: 3/31/2026     Ownership current as of: 3/26/2026     Tax Year: 2026
REID 161420

PIN # 0841-96-1003

Location Address Property Description
402 GREYSTONE DR GREYSTONE/PH:01/LT#46 PL:000128-000081
   
Property Owner Owner's Mailing Address
STAR BORROWER SFR5 LP
PO BOX 4900
SCOTTSDALE AZ 85261
Parcel
Buildings
Misc Improvements
Land
Deeds
Notes
Sales
Photos
Map
Building Location Address
402 GREYSTONE DR
Building Description
RESFR-RES-FRM-OR-EQ
Card   of  1
Bldg Type RESIDENTIAL
Units 1
Living Area (SQFT) 1740
Number of Stories 2.00
Style COL-COLONIAL
Foundation 04-P-FOOTING/CRWL-SP
Exterior 08-VINYL/ALUMINUM
Const Type
Heating 05-PACKAGE-HEAT/COOL
Air Cond
Plumbing Baths (Full):   2
Baths (Half):   1
Extra Fixtures:   0
Total Plumbing Fixtures:   8 
Bedrooms 3
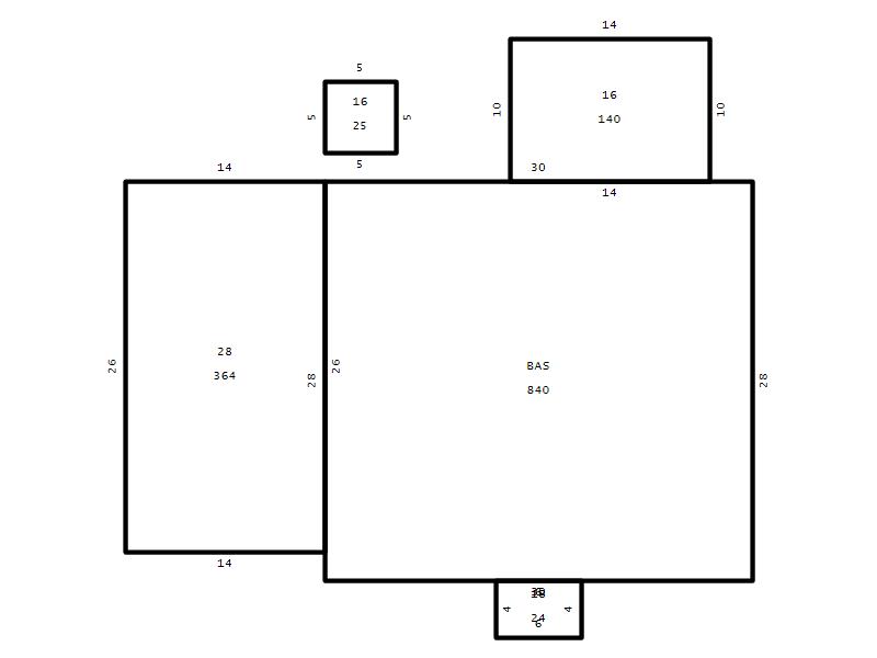
Main Body (SQFT) 840
Year Built 1994
Additions 5
Effective Year 1994
Remodeled 0
Interior Adj.
Other Features
Building Total & Improvement Details

Grade C+ 110%
Percentage Complete 100
Total Adjusted Replacement Cost New $349,731
Physical Depreciation (% Bad) 0%
Depreciated Value $283,282
Economic Depreciation (% Bad) 0%
Functional Depreciation (% Bad) 0%
Total Depreciated Value $283,282
Market Area Factor 1.00
Building Value $283,282
Misc Improvements Value
Total Improvement Value $283,282

Assessed Land Value $69,493
   
Assessed Total Value $352,775



Addition Summary 
StoryTypeCodeArea
1.00 Frame Deck 16 140
1.00 Covered Porch 18 24
1.00 Garage 28 364
1.00 Frame Deck 16 25
1.00 Res Frame 2Nd Flr FR02 900
 
Other Improvements 
 


Building Sketch
Photograph
Building Sketch Building Photo
(Click sketch for bigger image)




Copyright © 2022 Durham County, North Carolina.