Building Summary

Data last updated on: 3/31/2026     Ownership current as of: 3/26/2026     Tax Year: 2026
REID 161425

PIN # 0841-96-0382

Location Address Property Description
3 LITTLE STONE CIR GREYSTONE/PH:01/LT#41 PL:000128-000081
   
Property Owner Owner's Mailing Address
METCALFE, LYNDA
3 LITTLE STONE CIR
DURHAM NC 27703
Parcel
Buildings
Misc Improvements
Land
Deeds
Notes
Sales
Photos
Map
Building Location Address
3 LITTLE STONE CIR
Building Description
RESFR-RES-FRM-OR-EQ
Card   of  1
Bldg Type RESIDENTIAL
Units 1
Living Area (SQFT) 1296
Number of Stories 2.00
Style COL-COLONIAL
Foundation 04-P-FOOTING/CRWL-SP
Exterior 09-HARD-B/CEMENTBRD
Const Type
Heating 05-PACKAGE-HEAT/COOL
Air Cond
Plumbing Baths (Full):   2
Baths (Half):   1
Extra Fixtures:   0
Total Plumbing Fixtures:   8 
Bedrooms 3
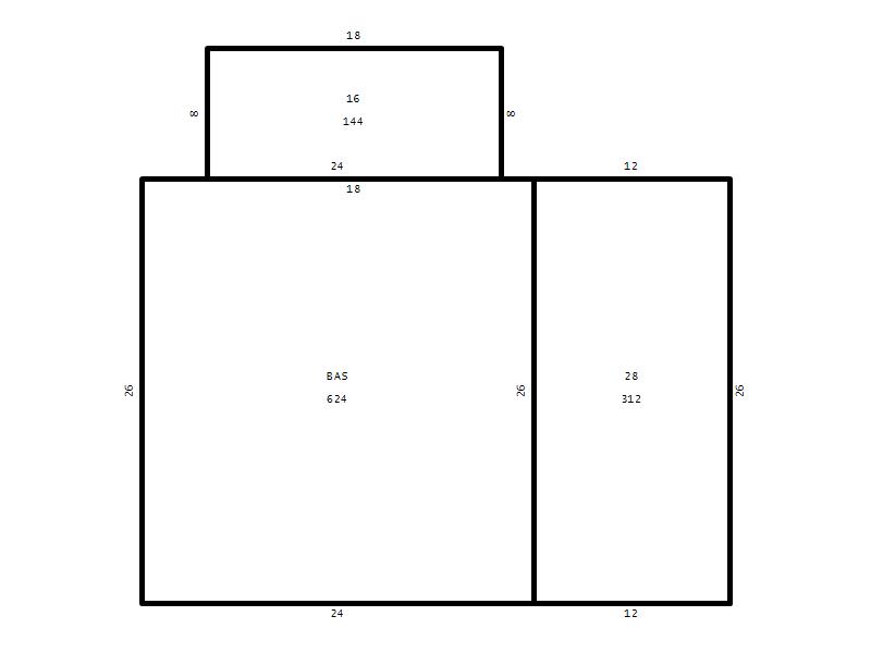
Main Body (SQFT) 624
Year Built 1995
Additions 4
Effective Year 1995
Remodeled 0
Interior Adj.
Other Features
Building Total & Improvement Details

Grade C+ 110%
Percentage Complete 100
Total Adjusted Replacement Cost New $288,649
Physical Depreciation (% Bad) 0%
Depreciated Value $216,487
Economic Depreciation (% Bad) 0%
Functional Depreciation (% Bad) 0%
Total Depreciated Value $216,487
Market Area Factor 1.00
Building Value $216,487
Misc Improvements Value
Total Improvement Value $216,487

Assessed Land Value $63,013
   
Assessed Total Value $279,500



Addition Summary 
StoryTypeCodeArea
1.00 Frame Deck 16 144
1.00 Garage 28 312
1.00 Res Frame 2Nd Flr FR02 360
1.00 Res Frm 2Nd Flr Over Garg FR02 312
 
Other Improvements 
 


Building Sketch
Photograph
Building Sketch Building Photo
(Click sketch for bigger image)




Copyright © 2022 Durham County, North Carolina.