Building Summary

Data last updated on: 4/2/2026     Ownership current as of: 3/30/2026     Tax Year: 2026
REID 161440

PIN # 0841-86-9802

Location Address Property Description
606 CHANDLER RD GREYSTONE/PH:02/LT#57 PL:000131-000145
   
Property Owner Owner's Mailing Address
SMOAKES, ANTWUAN
606 CHANDLER RD
DURHAM NC 27703
Parcel
Buildings
Misc Improvements
Land
Deeds
Notes
Sales
Photos
Map
Building Location Address
606 CHANDLER RD
Building Description
RESFR-RES-FRM-OR-EQ
Card   of  1
Bldg Type RESIDENTIAL
Units 1
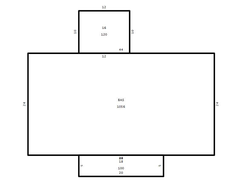
Living Area (SQFT) 1056
Number of Stories 1.00
Style RAN-RANCH
Foundation 04-P-FOOTING/CRWL-SP
Exterior 09-HARD-B/CEMENTBRD
Const Type
Heating 05-PACKAGE-HEAT/COOL
Air Cond
Plumbing Baths (Full):   2
Baths (Half):   0
Extra Fixtures:   0
Total Plumbing Fixtures:   6 
Bedrooms 3
Main Body (SQFT) 1056
Year Built 1994
Additions 2
Effective Year 1994
Remodeled 0
Interior Adj.
Other Features
Building Total & Improvement Details

Grade C 100%
Percentage Complete 100
Total Adjusted Replacement Cost New $210,854
Physical Depreciation (% Bad) 0%
Depreciated Value $156,032
Economic Depreciation (% Bad) 0%
Functional Depreciation (% Bad) 0%
Total Depreciated Value $156,032
Market Area Factor 1.00
Building Value $156,032
Misc Improvements Value $8,713
Total Improvement Value $164,745

Assessed Land Value $70,928
   
Assessed Total Value $235,673



Addition Summary 
StoryTypeCodeArea
1.00 Frame Deck 16 120
1.00 Covered Porch 18 100
 
Other Improvements 
UnitsDescriptionItemCodeYear% BadValue
22x22 DIMENSIONS Garage Frame 1994 55 8713
 


Building Sketch
Photograph
Building Sketch Building Photo
(Click sketch for bigger image)




Copyright © 2022 Durham County, North Carolina.