Building Summary

Data last updated on: 4/2/2026     Ownership current as of: 3/30/2026     Tax Year: 2026
REID 161489

PIN # 0841-88-6642

Location Address Property Description
810 ALPHA DR TWIN LAKES/PH:02/BLK:B/LT #42 PL:000113-000112
   
Property Owner Owner's Mailing Address
MORSE, MAKENZIE;PALAZOLA, HOLDEN
810 ALPHA DR
DURHAM NC 27703
Parcel
Buildings
Misc Improvements
Land
Deeds
Notes
Sales
Photos
Map
Building Location Address
810 ALPHA DR
Building Description
RESFR-RES-FRM-OR-EQ
Card   of  1
Bldg Type RESIDENTIAL
Units 1
Living Area (SQFT) 2590
Number of Stories 1.00
Style RAN-RANCH
Foundation 06-BASEMENT
Exterior 09-HARD-B/CEMENTBRD
Const Type
Heating 05-PACKAGE-HEAT/COOL
Air Cond
Plumbing Baths (Full):   2
Baths (Half):   0
Extra Fixtures:   0
Total Plumbing Fixtures:   6 
Bedrooms 3
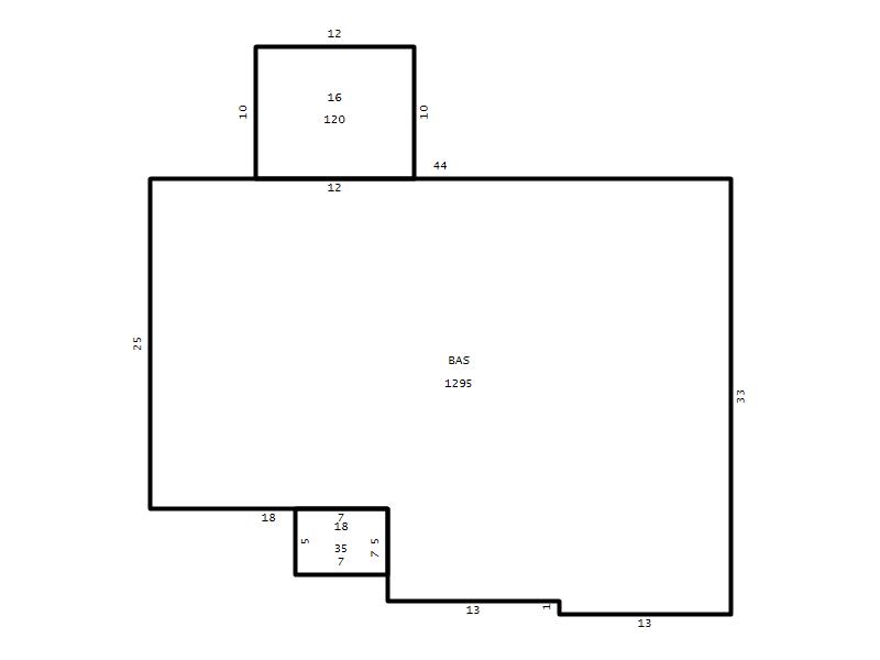
Main Body (SQFT) 1295
Year Built 1998
Additions 3
Effective Year 1998
Remodeled 0
Interior Adj.
Other Features
Building Total & Improvement Details

Grade C+5 105%
Percentage Complete 100
Total Adjusted Replacement Cost New $402,035
Physical Depreciation (% Bad) 0%
Depreciated Value $329,669
Economic Depreciation (% Bad) 0%
Functional Depreciation (% Bad) 0%
Total Depreciated Value $329,669
Market Area Factor 1.00
Building Value $329,669
Misc Improvements Value $109
Total Improvement Value $329,778

Assessed Land Value $82,550
   
Assessed Total Value $412,328



Addition Summary 
StoryTypeCodeArea
1.00 Frame Deck 16 120
1.00 Covered Porch 18 35
1.00 Lower Living Area LL 1295
 
Other Improvements 
UnitsDescriptionItemCodeYear% BadValue
7x9 DIMENSIONS Shed (Open Pole) 2000 75 109
 


Building Sketch
Photograph
Building Sketch Building Photo
(Click sketch for bigger image)




Copyright © 2022 Durham County, North Carolina.