Building Summary

Data last updated on: 4/2/2026     Ownership current as of: 3/30/2026     Tax Year: 2026
REID 161528

PIN # 0851-17-4471

Location Address Property Description
8 WETHERBURN PL GREYSONS GREEN/PH:02/BLK: F/LT#09 PL:000112-000168
   
Property Owner Owner's Mailing Address
AMNL ASSET COMPANY 1 LLC
3903 S CONGRESS AVE STE 40298
AUSTIN TX 78704
Parcel
Buildings
Misc Improvements
Land
Deeds
Notes
Sales
Photos
Map
Building Location Address
8 WETHERBURN PL
Building Description
RESFR-RES-FRM-OR-EQ
Card   of  1
Bldg Type RESIDENTIAL
Units 1
Living Area (SQFT) 1300
Number of Stories 2.00
Style CON-CONVENTIONAL
Foundation 04-P-FOOTING/CRWL-SP
Exterior 09-HARD-B/CEMENTBRD
Const Type
Heating 05-PACKAGE-HEAT/COOL
Air Cond
Plumbing Baths (Full):   2
Baths (Half):   1
Extra Fixtures:   0
Total Plumbing Fixtures:   8 
Bedrooms 3
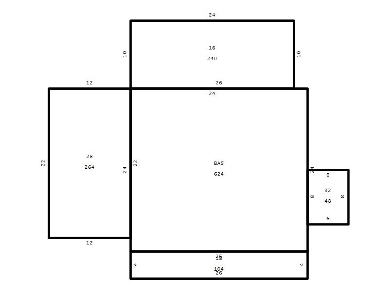
Main Body (SQFT) 624
Year Built 1987
Additions 5
Effective Year 1987
Remodeled 0
Interior Adj.
Other Features
Building Total & Improvement Details

Grade B+10 130%
Percentage Complete 100
Total Adjusted Replacement Cost New $351,825
Physical Depreciation (% Bad) 0%
Depreciated Value $249,796
Economic Depreciation (% Bad) 0%
Functional Depreciation (% Bad) 0%
Total Depreciated Value $249,796
Market Area Factor 1.00
Building Value $249,796
Misc Improvements Value
Total Improvement Value $249,796

Assessed Land Value $60,864
   
Assessed Total Value $310,660



Addition Summary 
StoryTypeCodeArea
1.00 Frame Deck 16 240
1.00 Covered Porch 18 104
1.00 Garage 28 264
1.00 Storage Utility 32 48
1.00 Res Frame 2Nd Flr FR02 676
 
Other Improvements 
 


Building Sketch
Photograph
Building Sketch Building Photo
(Click sketch for bigger image)




Copyright © 2022 Durham County, North Carolina.