Building Summary

Data last updated on: 4/2/2026     Ownership current as of: 3/30/2026     Tax Year: 2026
REID 161557

PIN # 0851-07-5032

Location Address Property Description
701 GRANDVIEW DR GREYSONS GREEN/PH:03/BLK: E/LT#01 PL:000117-000160
   
Property Owner Owner's Mailing Address
WEEKS STRICKLAND, JADE ELIZABETH;STRICKLAND, PRESTON HEATH
701 GRANDVIEW DR
DURHAM NC 27703
Parcel
Buildings
Misc Improvements
Land
Deeds
Notes
Sales
Photos
Map
Building Location Address
701 GRANDVIEW DR
Building Description
RESFR-RES-FRM-OR-EQ
Card   of  1
Bldg Type RESIDENTIAL
Units 1
Living Area (SQFT) 1576
Number of Stories 2.00
Style CON-CONVENTIONAL
Foundation 04-P-FOOTING/CRWL-SP
Exterior 09-HARD-B/CEMENTBRD
Const Type
Heating 05-PACKAGE-HEAT/COOL
Air Cond
Plumbing Baths (Full):   2
Baths (Half):   1
Extra Fixtures:   0
Total Plumbing Fixtures:   8 
Bedrooms 3
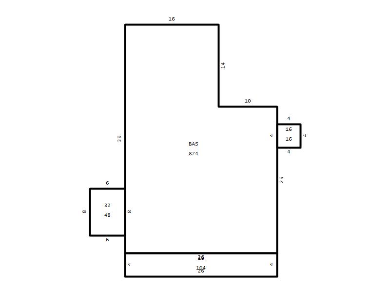
Main Body (SQFT) 874
Year Built 1990
Additions 4
Effective Year 1990
Remodeled 0
Interior Adj.
Other Features
Building Total & Improvement Details

Grade B+10 130%
Percentage Complete 100
Total Adjusted Replacement Cost New $363,661
Physical Depreciation (% Bad) 0%
Depreciated Value $261,836
Economic Depreciation (% Bad) 0%
Functional Depreciation (% Bad) 0%
Total Depreciated Value $261,836
Market Area Factor 1.00
Building Value $261,836
Misc Improvements Value $599
Total Improvement Value $262,435

Assessed Land Value $58,962
   
Assessed Total Value $321,397



Addition Summary 
StoryTypeCodeArea
1.00 Frame Deck 16 16
1.00 Covered Porch 18 104
1.00 Storage Utility 32 48
1.00 Res Frame 2Nd Flr FR02 702
 
Other Improvements 
UnitsDescriptionItemCodeYear% BadValue
12x8 DIMENSIONS Storage Building 1990 75 599
 


Building Sketch
Photograph
Building Sketch Building Photo
(Click sketch for bigger image)




Copyright © 2022 Durham County, North Carolina.