Building Summary

Data last updated on: 3/31/2026     Ownership current as of: 3/26/2026     Tax Year: 2026
REID 161562

PIN # 0851-07-9234

Location Address Property Description
9 PETERSBURG PL GREYSONS GREEN/PH:05/BLK: A/LT#14 PL:000121-000115
   
Property Owner Owner's Mailing Address
COLEY, EVELYN JILL
9 PETERSBURG PL
DURHAM NC 27703
Parcel
Buildings
Misc Improvements
Land
Deeds
Notes
Sales
Photos
Map
Building Location Address
9 PETERSBURG PL
Building Description
RESMS-RES-MS-OR-EQ
Card   of  1
Bldg Type RESIDENTIAL
Units 1
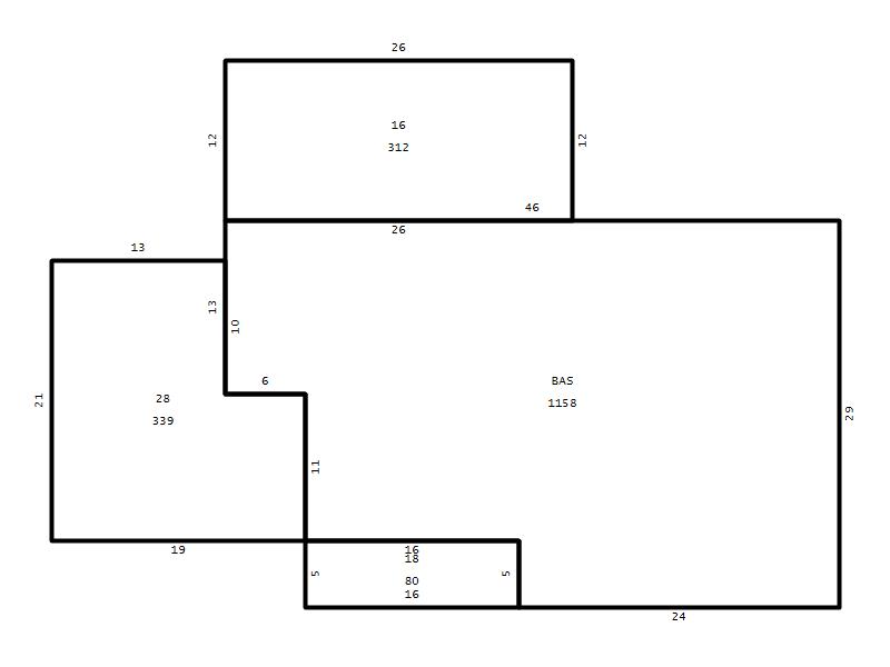
Living Area (SQFT) 1158
Number of Stories 1.00
Style RAN-RANCH
Foundation 04-P-FOOTING/CRWL-SP
Exterior 02-BRICK
Const Type
Heating 05-PACKAGE-HEAT/COOL
Air Cond
Plumbing Baths (Full):   2
Baths (Half):   0
Extra Fixtures:   0
Total Plumbing Fixtures:   6 
Bedrooms 3
Main Body (SQFT) 1158
Year Built 1991
Additions 3
Effective Year 1991
Remodeled 0
Interior Adj.
Other Features
Building Total & Improvement Details

Grade B+10 130%
Percentage Complete 100
Total Adjusted Replacement Cost New $343,287
Physical Depreciation (% Bad) 0%
Depreciated Value $250,600
Economic Depreciation (% Bad) 0%
Functional Depreciation (% Bad) 0%
Total Depreciated Value $250,600
Market Area Factor 1.00
Building Value $250,600
Misc Improvements Value
Total Improvement Value $250,600

Assessed Land Value $62,290
   
Assessed Total Value $312,890



Addition Summary 
StoryTypeCodeArea
1.00 Frame Deck 16 312
1.00 Covered Porch 18 80
1.00 Garage 28 339
 
Other Improvements 
 


Building Sketch
Photograph
Building Sketch Building Photo
(Click sketch for bigger image)




Copyright © 2022 Durham County, North Carolina.