Building Summary

Data last updated on: 4/1/2026     Ownership current as of: 3/27/2026     Tax Year: 2026
REID 161597

PIN # 0851-06-5808

Location Address Property Description
700 GRANDVIEW DR GREYSONS GREEN/PH:03/BLK: C/LT#40 PL:000117-000160
   
Property Owner Owner's Mailing Address
WRIGHT, JEREMY DANIEL
700 GRANDVIEW DR
DURHAM NC 27703
Parcel
Buildings
Misc Improvements
Land
Deeds
Notes
Sales
Photos
Map
Building Location Address
700 GRANDVIEW DR
Building Description
RESFR-RES-FRM-OR-EQ
Card   of  1
Bldg Type RESIDENTIAL
Units 1
Living Area (SQFT) 1152
Number of Stories 2.00
Style CAP-CAPE-COD
Foundation 04-P-FOOTING/CRWL-SP
Exterior 08-VINYL/ALUMINUM
Const Type
Heating 06-HEAT-PUMP
Air Cond
Plumbing Baths (Full):   2
Baths (Half):   0
Extra Fixtures:   0
Total Plumbing Fixtures:   6 
Bedrooms 3
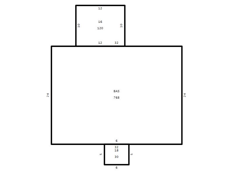
Main Body (SQFT) 768
Year Built 2001
Additions 3
Effective Year 2001
Remodeled 0
Interior Adj.
Other Features
Building Total & Improvement Details

Grade B+10 130%
Percentage Complete 100
Total Adjusted Replacement Cost New $282,766
Physical Depreciation (% Bad) 0%
Depreciated Value $220,557
Economic Depreciation (% Bad) 0%
Functional Depreciation (% Bad) 0%
Total Depreciated Value $220,557
Market Area Factor 1.00
Building Value $220,557
Misc Improvements Value
Total Improvement Value $220,557

Assessed Land Value $59,438
   
Assessed Total Value $279,995



Addition Summary 
StoryTypeCodeArea
1.00 Frame Deck 16 120
1.00 Covered Porch 18 30
1.00 Res Frame 2Nd Flr FR02 384
 
Other Improvements 
 


Building Sketch
Photograph
Building Sketch Building Photo
(Click sketch for bigger image)




Copyright © 2022 Durham County, North Carolina.