Building Summary

Data last updated on: 4/2/2026     Ownership current as of: 3/30/2026     Tax Year: 2026
REID 161638

PIN # 0841-97-4868

Location Address Property Description
3404 WOODLAND PARK RD TWIN LAKES/PH:01/BLK:C/LT #36 PL:000112-000186
   
Property Owner Owner's Mailing Address
PERRY, KAREN DENISE;GREEN, JAMES ARTHUR JR
3404 WOODLAND PARK RD
DURHAM NC 27703
Parcel
Buildings
Misc Improvements
Land
Deeds
Notes
Sales
Photos
Map
Building Location Address
3404 WOODLAND PARK RD
Building Description
RESFR-RES-FRM-OR-EQ
Card   of  1
Bldg Type RESIDENTIAL
Units 1
Living Area (SQFT) 1543
Number of Stories 2.00
Style CAP-CAPE-COD
Foundation 04-P-FOOTING/CRWL-SP
Exterior 08-VINYL/ALUMINUM
Const Type
Heating 05-PACKAGE-HEAT/COOL
Air Cond
Plumbing Baths (Full):   3
Baths (Half):   1
Extra Fixtures:   0
Total Plumbing Fixtures:   11 
Bedrooms 3
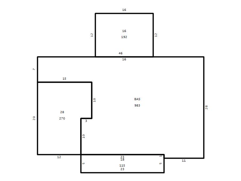
Main Body (SQFT) 983
Year Built 1987
Additions 5
Effective Year 1987
Remodeled 0
Interior Adj.
Other Features
Building Total & Improvement Details

Grade C 100%
Percentage Complete 100
Total Adjusted Replacement Cost New $299,526
Physical Depreciation (% Bad) 0%
Depreciated Value $212,663
Economic Depreciation (% Bad) 0%
Functional Depreciation (% Bad) 0%
Total Depreciated Value $212,663
Market Area Factor 1.00
Building Value $212,663
Misc Improvements Value $422
Total Improvement Value $213,085

Assessed Land Value $96,200
   
Assessed Total Value $309,285



Addition Summary 
StoryTypeCodeArea
1.00 Frame Deck 16 192
1.00 Covered Porch 18 115
1.00 Garage 28 270
1.00 Res Frame 2Nd Flr FR02 492
1.00 Res Frm 2Nd Flr Over Garg FR02 68
 
Other Improvements 
UnitsDescriptionItemCodeYear% BadValue
10x19 DIMENSIONS Shed (Open Pole) 2010 75 422
 


Building Sketch
Photograph
Building Sketch Building Photo
(Click sketch for bigger image)




Copyright © 2022 Durham County, North Carolina.