Building Summary

Data last updated on: 4/2/2026     Ownership current as of: 3/30/2026     Tax Year: 2026
REID 161660

PIN # 0841-88-9271

Location Address Property Description
1 SATURN CT TWIN LAKES/PH:02/BLK:C/LT #12 PL:000113-000112
   
Property Owner Owner's Mailing Address
BOHLMANN, ZACHARY HARRISON
1 SATURN CT
DURHAM NC 27703
Parcel
Buildings
Misc Improvements
Land
Deeds
Notes
Sales
Photos
Map
Building Location Address
1 SATURN CT
Building Description
RESFR-RES-FRM-OR-EQ
Card   of  1
Bldg Type RESIDENTIAL
Units 1
Living Area (SQFT) 1872
Number of Stories 2.00
Style CON-CONVENTIONAL
Foundation 04-P-FOOTING/CRWL-SP
Exterior 08-VINYL/ALUMINUM
Const Type
Heating 06-HEAT-PUMP
Air Cond
Plumbing Baths (Full):   2
Baths (Half):   1
Extra Fixtures:   0
Total Plumbing Fixtures:   8 
Bedrooms 3
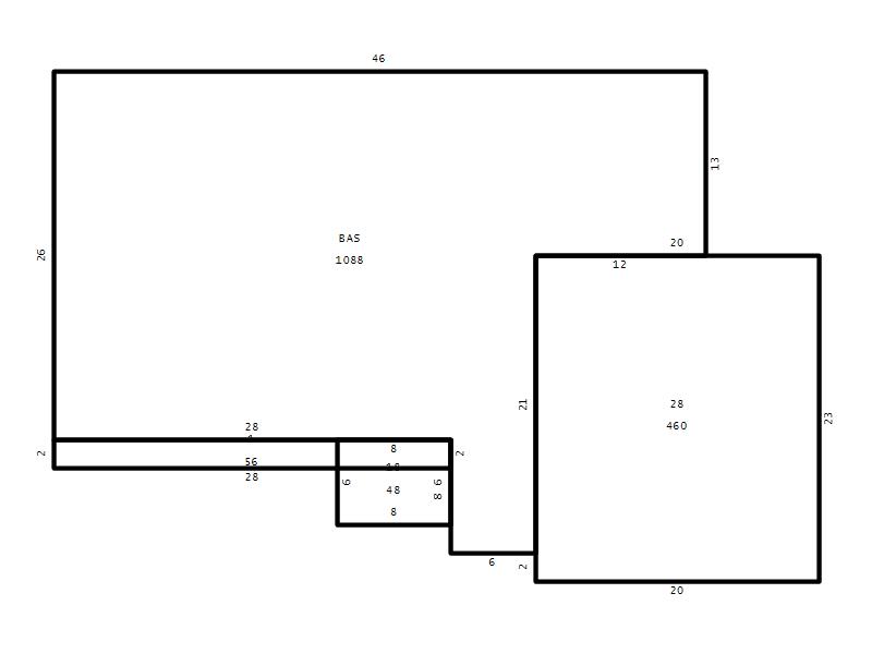
Main Body (SQFT) 1088
Year Built 1988
Additions 4
Effective Year 1988
Remodeled 0
Interior Adj.
Other Features
Building Total & Improvement Details

Grade C 100%
Percentage Complete 100
Total Adjusted Replacement Cost New $332,448
Physical Depreciation (% Bad) 0%
Depreciated Value $236,038
Economic Depreciation (% Bad) 0%
Functional Depreciation (% Bad) 0%
Total Depreciated Value $236,038
Market Area Factor 1.00
Building Value $236,038
Misc Improvements Value
Total Improvement Value $236,038

Assessed Land Value $82,550
   
Assessed Total Value $318,588



Addition Summary 
StoryTypeCodeArea
1.00 Overhang 01 56
1.00 Covered Porch 18 48
1.00 Garage 28 460
1.00 Res Frame 2Nd Flr FR02 728
 
Other Improvements 
 


Building Sketch
Photograph
Building Sketch Building Photo
(Click sketch for bigger image)




Copyright © 2022 Durham County, North Carolina.