Building Summary

Data last updated on: 4/2/2026     Ownership current as of: 3/30/2026     Tax Year: 2026
REID 161753

PIN # 0851-45-3218

Location Address Property Description
612 CHIVALRY DR IVANHOE/SEC:03/LT#109 PL:000111-000003
   
Property Owner Owner's Mailing Address
HERNANDEZ, DAVID JONATHAN NOLASCO;ARTEAGA, ERIKA CAROLINA LOPEZ
612 CHIVALRY DR
DURHAM NC 27703
Parcel
Buildings
Misc Improvements
Land
Deeds
Notes
Sales
Photos
Map
Building Location Address
612 CHIVALRY DR
Building Description
RESFR-RES-FRM-OR-EQ
Card   of  1
Bldg Type RESIDENTIAL
Units 1
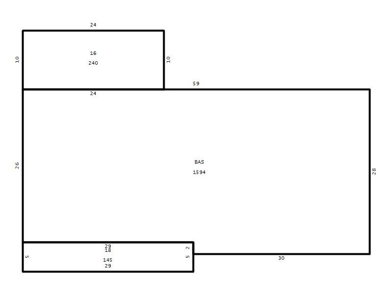
Living Area (SQFT) 1594
Number of Stories 1.00
Style RAN-RANCH
Foundation 04-P-FOOTING/CRWL-SP
Exterior 09-HARD-B/CEMENTBRD
Const Type
Heating 05-PACKAGE-HEAT/COOL
Air Cond
Plumbing Baths (Full):   2
Baths (Half):   0
Extra Fixtures:   0
Total Plumbing Fixtures:   6 
Bedrooms 3
Main Body (SQFT) 1594
Year Built 1986
Additions 2
Effective Year 1986
Remodeled 0
Interior Adj.
Other Features
Building Total & Improvement Details

Grade B+10 130%
Percentage Complete 100
Total Adjusted Replacement Cost New $370,997
Physical Depreciation (% Bad) 0%
Depreciated Value $259,698
Economic Depreciation (% Bad) 0%
Functional Depreciation (% Bad) 0%
Total Depreciated Value $259,698
Market Area Factor 1.00
Building Value $259,698
Misc Improvements Value $13,826
Total Improvement Value $273,524

Assessed Land Value $65,565
   
Assessed Total Value $339,089



Addition Summary 
StoryTypeCodeArea
1.00 Frame Deck 16 240
1.00 Covered Porch 18 145
 
Other Improvements 
UnitsDescriptionItemCodeYear% BadValue
576 SIZE Garage Frame 1990 55 13826
 


Building Sketch
Photograph
Building Sketch Building Photo
(Click sketch for bigger image)




Copyright © 2022 Durham County, North Carolina.