Building Summary

Data last updated on: 4/2/2026     Ownership current as of: 3/30/2026     Tax Year: 2026
REID 161844

PIN # 0851-34-9265

Location Address Property Description
507 CHIVALRY DR IVANHOE/SEC:02/LT#063 PL:000106-000087
   
Property Owner Owner's Mailing Address
RUBINO, KAREN;RUBINO, ROSARIO
507 CHIVALRY DR
DURHAM NC 27703
Parcel
Buildings
Misc Improvements
Land
Deeds
Notes
Sales
Photos
Map
Building Location Address
507 CHIVALRY DR
Building Description
RESFR-RES-FRM-OR-EQ
Card   of  1
Bldg Type RESIDENTIAL
Units 1
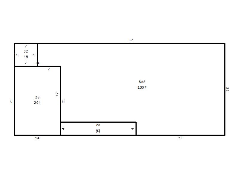
Living Area (SQFT) 1357
Number of Stories 1.00
Style RAN-RANCH
Foundation 04-P-FOOTING/CRWL-SP
Exterior 01-WOOD-PANEL
Const Type
Heating 05-PACKAGE-HEAT/COOL
Air Cond
Plumbing Baths (Full):   2
Baths (Half):   0
Extra Fixtures:   0
Total Plumbing Fixtures:   6 
Bedrooms 3
Main Body (SQFT) 1357
Year Built 1985
Additions 3
Effective Year 1985
Remodeled 0
Interior Adj.
Other Features
Building Total & Improvement Details

Grade B+10 130%
Percentage Complete 100
Total Adjusted Replacement Cost New $340,406
Physical Depreciation (% Bad) 0%
Depreciated Value $238,284
Economic Depreciation (% Bad) 0%
Functional Depreciation (% Bad) 0%
Total Depreciated Value $238,284
Market Area Factor 1.00
Building Value $238,284
Misc Improvements Value $8,909
Total Improvement Value $247,193

Assessed Land Value $62,775
   
Assessed Total Value $309,968



Addition Summary 
StoryTypeCodeArea
1.00 Covered Porch 18 92
1.00 Garage 28 294
1.00 Storage Utility 32 49
 
Other Improvements 
UnitsDescriptionItemCodeYear% BadValue
6x12 DIMENSIONS Storage Building 2005 75 344
16x16 DIMENSIONS Shop 2005 35 6133
8x12 DIMENSIONS Shop 2005 35 2432
 


Building Sketch
Photograph
Building Sketch Building Photo
(Click sketch for bigger image)




Copyright © 2022 Durham County, North Carolina.