Building Summary

Data last updated on: 3/31/2026     Ownership current as of: 3/26/2026     Tax Year: 2026
REID 161865

PIN # 0841-96-5537

Location Address Property Description
8 WAYSTONE PL GREYSTONE/PH:03/LT#16 PL:000138-000204
   
Property Owner Owner's Mailing Address
FKH, SFR C2 LP
600 GALLERIA PKWY STE 300
ATLANTA GA 30339
Parcel
Buildings
Misc Improvements
Land
Deeds
Notes
Sales
Photos
Map
Building Location Address
8 WAYSTONE PL
Building Description
RESFR-RES-FRM-OR-EQ
Card   of  1
Bldg Type RESIDENTIAL
Units 1
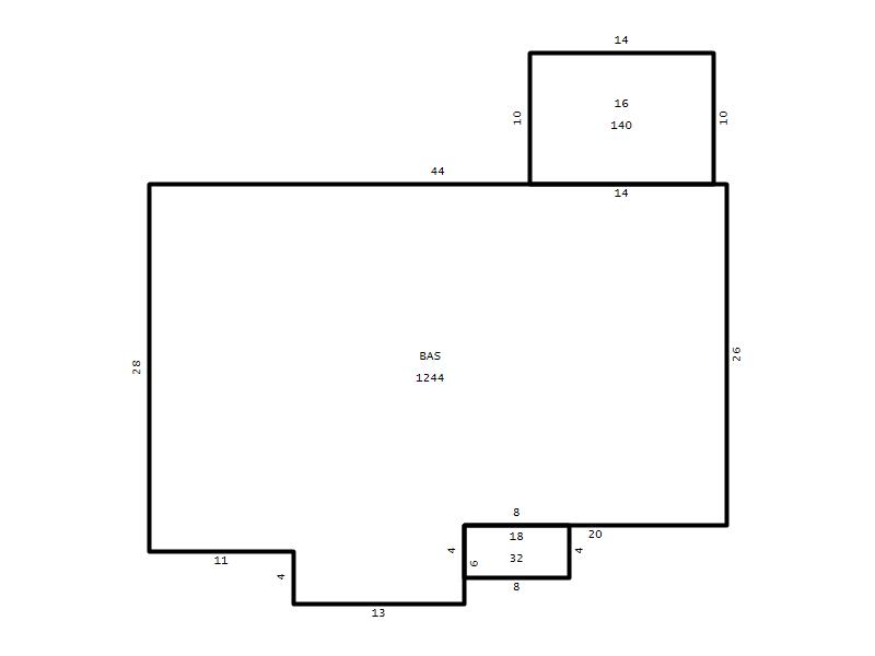
Living Area (SQFT) 1244
Number of Stories 1.00
Style RAN-RANCH
Foundation 04-P-FOOTING/CRWL-SP
Exterior 09-HARD-B/CEMENTBRD
Const Type
Heating 05-PACKAGE-HEAT/COOL
Air Cond
Plumbing Baths (Full):   2
Baths (Half):   0
Extra Fixtures:   0
Total Plumbing Fixtures:   6 
Bedrooms 3
Main Body (SQFT) 1244
Year Built 1998
Additions 2
Effective Year 1998
Remodeled 0
Interior Adj.
Other Features
Building Total & Improvement Details

Grade C+ 110%
Percentage Complete 100
Total Adjusted Replacement Cost New $261,400
Physical Depreciation (% Bad) 0%
Depreciated Value $198,664
Economic Depreciation (% Bad) 0%
Functional Depreciation (% Bad) 0%
Total Depreciated Value $198,664
Market Area Factor 1.00
Building Value $198,664
Misc Improvements Value
Total Improvement Value $198,664

Assessed Land Value $67,100
   
Assessed Total Value $265,764



Addition Summary 
StoryTypeCodeArea
1.00 Frame Deck 16 140
1.00 Covered Porch 18 32
 
Other Improvements 
 


Building Sketch
Photograph
Building Sketch Building Photo
(Click sketch for bigger image)




Copyright © 2022 Durham County, North Carolina.