Building Summary

Data last updated on: 3/31/2026     Ownership current as of: 3/26/2026     Tax Year: 2026
REID 161871

PIN # 0841-96-7516

Location Address Property Description
9 WAYSTONE PL GREYSTONE/PH:03/LT#22 REV PL:000139-000044
   
Property Owner Owner's Mailing Address
ROSA, TAYLOR
9 WAYSTONE WAY
DURHAM NC 27703
Parcel
Buildings
Misc Improvements
Land
Deeds
Notes
Sales
Photos
Map
Building Location Address
9 WAYSTONE PL
Building Description
RESFR-RES-FRM-OR-EQ
Card   of  1
Bldg Type RESIDENTIAL
Units 1
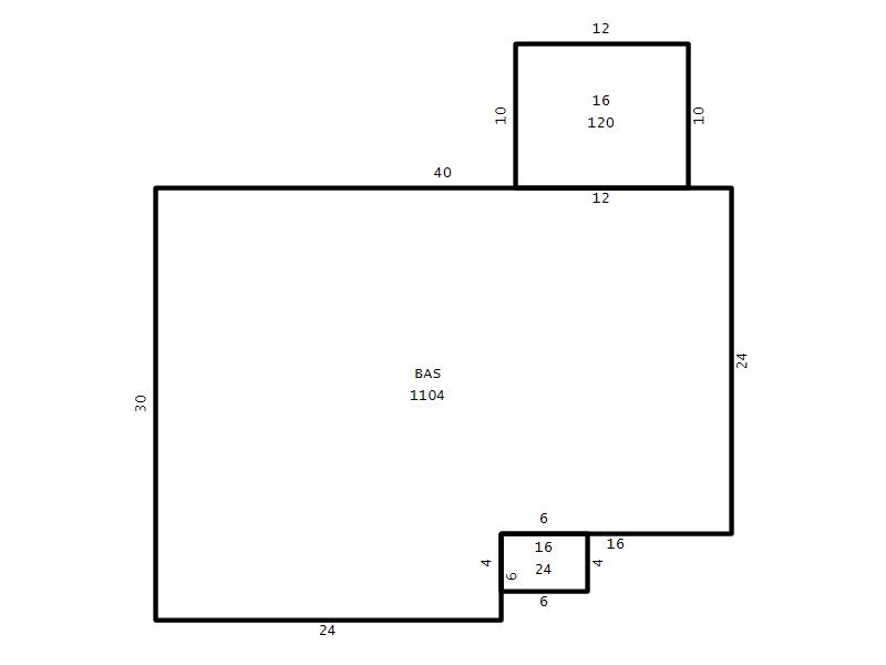
Living Area (SQFT) 1104
Number of Stories 1.00
Style RAN-RANCH
Foundation 04-P-FOOTING/CRWL-SP
Exterior 08-VINYL/ALUMINUM
Const Type
Heating 05-PACKAGE-HEAT/COOL
Air Cond
Plumbing Baths (Full):   2
Baths (Half):   0
Extra Fixtures:   0
Total Plumbing Fixtures:   6 
Bedrooms 3
Main Body (SQFT) 1104
Year Built 1998
Additions 2
Effective Year 1998
Remodeled 0
Interior Adj.
Other Features
Building Total & Improvement Details

Grade C+ 110%
Percentage Complete 100
Total Adjusted Replacement Cost New $234,458
Physical Depreciation (% Bad) 0%
Depreciated Value $178,188
Economic Depreciation (% Bad) 0%
Functional Depreciation (% Bad) 0%
Total Depreciated Value $178,188
Market Area Factor 1.00
Building Value $178,188
Misc Improvements Value
Total Improvement Value $178,188

Assessed Land Value $66,000
   
Assessed Total Value $244,188



Addition Summary 
StoryTypeCodeArea
1.00 Frame Deck 16 120
1.00 Frame Deck 16 24
 
Other Improvements 
 


Building Sketch
Photograph
Building Sketch Building Photo
(Click sketch for bigger image)




Copyright © 2022 Durham County, North Carolina.