Building Summary

Data last updated on: 3/31/2026     Ownership current as of: 3/26/2026     Tax Year: 2026
REID 161905

PIN # 0851-24-3402

Location Address Property Description
308 QUARTZ DR STONE HILL ESTATES/PH:03/ LT#051 PL:000137-000116
   
Property Owner Owner's Mailing Address
RODGERS, MICHAEL RICHARD;KOLLOEN, JESSICA ASHLEY
308 QUARTZ DR
DURHAM NC 27703
Parcel
Buildings
Misc Improvements
Land
Deeds
Notes
Sales
Photos
Map
Building Location Address
308 QUARTZ DR
Building Description
RESFR-RES-FRM-OR-EQ
Card   of  1
Bldg Type RESIDENTIAL
Units 1
Living Area (SQFT) 1470
Number of Stories 2.00
Style CON-CONVENTIONAL
Foundation 03-CONTINOUS-SLAB
Exterior 08-VINYL/ALUMINUM
Const Type
Heating 05-PACKAGE-HEAT/COOL
Air Cond
Plumbing Baths (Full):   2
Baths (Half):   1
Extra Fixtures:   0
Total Plumbing Fixtures:   8 
Bedrooms 2
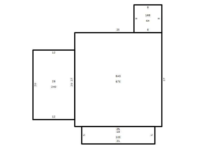
Main Body (SQFT) 675
Year Built 2000
Additions 5
Effective Year 2000
Remodeled 0
Interior Adj.
Other Features
Building Total & Improvement Details

Grade C+10 110%
Percentage Complete 100
Total Adjusted Replacement Cost New $290,991
Physical Depreciation (% Bad) 0%
Depreciated Value $224,063
Economic Depreciation (% Bad) 0%
Functional Depreciation (% Bad) 0%
Total Depreciated Value $224,063
Market Area Factor 1.00
Building Value $224,063
Misc Improvements Value $510
Total Improvement Value $224,573

Assessed Land Value $105,300
   
Assessed Total Value $329,873



Addition Summary 
StoryTypeCodeArea
1.00 Concrete Slab 16B 64
1.00 Covered Porch 18 105
1.00 Garage 28 240
1.00 Res Frame 2Nd Flr FR02 675
1.00 Res Frm 2Nd Flr Over Garg FR02 120
 
Other Improvements 
UnitsDescriptionItemCodeYear% BadValue
8x10 DIMENSIONS Storage Building 2000 75 510
 


Building Sketch
Photograph
Building Sketch Building Photo
(Click sketch for bigger image)




Copyright © 2022 Durham County, North Carolina.