Building Summary

Data last updated on: 3/31/2026     Ownership current as of: 3/26/2026     Tax Year: 2026
REID 161982

PIN # 0851-25-8205

Location Address Property Description
521 QUARTZ DR STONE HILL ESTATES/PH:02/ LT#129 PL:000137-000114
   
Property Owner Owner's Mailing Address
521 QUARTZ LAND TRUST
521 QUARTZ DR
DURHAM NC 27703
Parcel
Buildings
Misc Improvements
Land
Deeds
Notes
Sales
Photos
Map
Building Location Address
521 QUARTZ DR
Building Description
RESFR-RES-FRM-OR-EQ
Card   of  1
Bldg Type RESIDENTIAL
Units 1
Living Area (SQFT) 1352
Number of Stories 2.00
Style CON-CONVENTIONAL
Foundation 03-CONTINOUS-SLAB
Exterior 08-VINYL/ALUMINUM
Const Type
Heating 06-HEAT-PUMP
Air Cond
Plumbing Baths (Full):   2
Baths (Half):   1
Extra Fixtures:   0
Total Plumbing Fixtures:   8 
Bedrooms 3
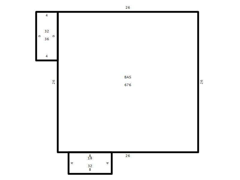
Main Body (SQFT) 676
Year Built 1998
Additions 3
Effective Year 1998
Remodeled 0
Interior Adj.
Other Features
Building Total & Improvement Details

Grade C+10 110%
Percentage Complete 100
Total Adjusted Replacement Cost New $264,495
Physical Depreciation (% Bad) 0%
Depreciated Value $201,016
Economic Depreciation (% Bad) 0%
Functional Depreciation (% Bad) 0%
Total Depreciated Value $201,016
Market Area Factor 1.00
Building Value $201,016
Misc Improvements Value
Total Improvement Value $201,016

Assessed Land Value $105,300
   
Assessed Total Value $306,316



Addition Summary 
StoryTypeCodeArea
1.00 Covered Porch 18 32
1.00 Storage Utility 32 36
1.00 Res Frame 2Nd Flr FR02 676
 
Other Improvements 
 


Building Sketch
Photograph
Building Sketch Building Photo
(Click sketch for bigger image)




Copyright © 2022 Durham County, North Carolina.