Building Summary

Data last updated on: 3/31/2026     Ownership current as of: 3/26/2026     Tax Year: 2026
REID 161989

PIN # 0851-25-6293

Location Address Property Description
406 SAPPHIRE DR STONE HILL ESTATES/PH:02/ LT#084 PL:000137-000114
   
Property Owner Owner's Mailing Address
RIVERA, LIZZETTE
897 LIVONIA AVE
BROOKLYN NY 11207
Parcel
Buildings
Misc Improvements
Land
Deeds
Notes
Sales
Photos
Map
Building Location Address
406 SAPPHIRE DR
Building Description
RESFR-RES-FRM-OR-EQ
Card   of  1
Bldg Type RESIDENTIAL
Units 1
Living Area (SQFT) 1780
Number of Stories 2.00
Style CON-CONVENTIONAL
Foundation 03-CONTINOUS-SLAB
Exterior 08-VINYL/ALUMINUM
Const Type
Heating 06-HEAT-PUMP
Air Cond
Plumbing Baths (Full):   2
Baths (Half):   1
Extra Fixtures:   0
Total Plumbing Fixtures:   8 
Bedrooms 4
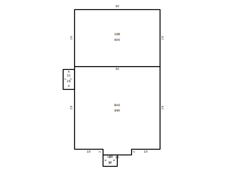
Main Body (SQFT) 890
Year Built 1998
Additions 4
Effective Year 1998
Remodeled 0
Interior Adj.
Other Features
Building Total & Improvement Details

Grade C+10 110%
Percentage Complete 100
Total Adjusted Replacement Cost New $320,245
Physical Depreciation (% Bad) 0%
Depreciated Value $243,386
Economic Depreciation (% Bad) 0%
Functional Depreciation (% Bad) 0%
Total Depreciated Value $243,386
Market Area Factor 1.00
Building Value $243,386
Misc Improvements Value
Total Improvement Value $243,386

Assessed Land Value $105,300
   
Assessed Total Value $348,686



Addition Summary 
StoryTypeCodeArea
1.00 Storage Utility 32 28
1.00 Concrete Slab 16B 600
1.00 Concrete Slab 16B 20
1.00 Res Frame 2Nd Flr FR02 890
 
Other Improvements 
 


Building Sketch
Photograph
Building Sketch Building Photo
(Click sketch for bigger image)




Copyright © 2022 Durham County, North Carolina.