Building Summary

Data last updated on: 4/2/2026     Ownership current as of: 3/30/2026     Tax Year: 2026
REID 162387

PIN # 0851-32-9856

Location Address Property Description
3811 VALLEYDALE DR PROP-CHANDLER S H/LT#01 PL:000037-000166
   
Property Owner Owner's Mailing Address
MADURO, BRITTNEY N
3811 VALLEYDALE DR
DURHAM NC 27703
Parcel
Buildings
Misc Improvements
Land
Deeds
Notes
Sales
Photos
Map
Building Location Address
3811 VALLEYDALE DR
Building Description
RESFR-RES-FRM-OR-EQ
Card   of  1
Bldg Type RESIDENTIAL
Units 1
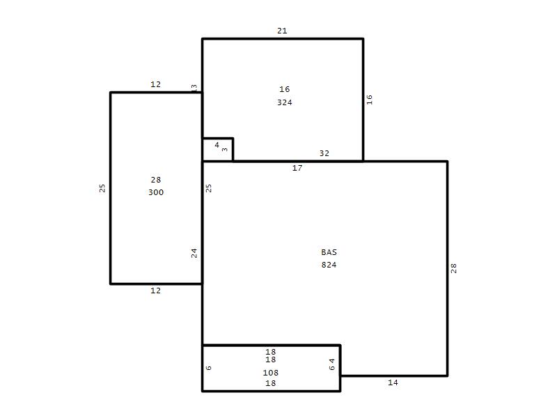
Living Area (SQFT) 824
Number of Stories 1.00
Style RAN-RANCH
Foundation 04-P-FOOTING/CRWL-SP
Exterior 08-VINYL/ALUMINUM
Const Type
Heating 03-FORCED-HOT-AIR
Air Cond
Plumbing Baths (Full):   1
Baths (Half):   0
Extra Fixtures:   0
Total Plumbing Fixtures:   3 
Bedrooms 3
Main Body (SQFT) 824
Year Built 1959
Additions 3
Effective Year 1959
Remodeled 0
Interior Adj.
Other Features
Building Total & Improvement Details

Grade C 100%
Percentage Complete 100
Total Adjusted Replacement Cost New $195,200
Physical Depreciation (% Bad) 0%
Depreciated Value $78,080
Economic Depreciation (% Bad) 0%
Functional Depreciation (% Bad) 0%
Total Depreciated Value $78,080
Market Area Factor 1.00
Building Value $78,080
Misc Improvements Value
Total Improvement Value $78,080

Assessed Land Value $108,750
   
Assessed Total Value $186,830



Addition Summary 
StoryTypeCodeArea
1.00 Frame Deck 16 324
1.00 Covered Porch 18 108
1.00 Garage 28 300
 
Other Improvements 
 


Building Sketch
Photograph
Building Sketch Building Photo
(Click sketch for bigger image)




Copyright © 2022 Durham County, North Carolina.