Building Summary

Data last updated on: 4/2/2026     Ownership current as of: 3/30/2026     Tax Year: 2026
REID 162421

PIN # 0851-42-4704

Location Address Property Description
3819 VALLEYDALE DR GROVE PARK/LINKSIDE/WESLY N:02/LT#256 PL:000139-000142
   
Property Owner Owner's Mailing Address
REDDIGARI, SAMIR JACOB;SHARPE, VICTORIA PAUL
3819 VALLEYDALE DR
DURHAM NC 27703
Parcel
Buildings
Misc Improvements
Land
Deeds
Notes
Sales
Photos
Map
Building Location Address
3819 VALLEYDALE DR
Building Description
RESFR-RES-FRM-OR-EQ
Card   of  1
Bldg Type RESIDENTIAL
Units 1
Living Area (SQFT) 1568
Number of Stories 2.00
Style CON-CONVENTIONAL
Foundation 03-CONTINOUS-SLAB
Exterior 08-VINYL/ALUMINUM
Const Type
Heating 05-PACKAGE-HEAT/COOL
Air Cond
Plumbing Baths (Full):   2
Baths (Half):   1
Extra Fixtures:   0
Total Plumbing Fixtures:   8 
Bedrooms 3
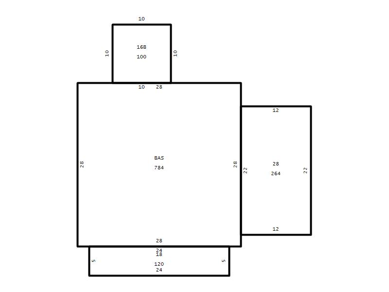
Main Body (SQFT) 784
Year Built 2007
Additions 4
Effective Year 2007
Remodeled 0
Interior Adj.
Other Features
Building Total & Improvement Details

Grade C 100%
Percentage Complete 100
Total Adjusted Replacement Cost New $277,944
Physical Depreciation (% Bad) 0%
Depreciated Value $227,914
Economic Depreciation (% Bad) 0%
Functional Depreciation (% Bad) 0%
Total Depreciated Value $227,914
Market Area Factor 1.00
Building Value $227,914
Misc Improvements Value $227
Total Improvement Value $228,141

Assessed Land Value $139,925
   
Assessed Total Value $368,066



Addition Summary 
StoryTypeCodeArea
1.00 Concrete Slab 16B 100
1.00 Covered Porch 18 120
1.00 Garage 28 264
1.00 Res Frame 2Nd Flr FR02 784
 
Other Improvements 
UnitsDescriptionItemCodeYear% BadValue
10x10 DIMENSIONS Shed (Open Pole) 2007 75 227
 


Building Sketch
Photograph
Building Sketch Building Photo
(Click sketch for bigger image)




Copyright © 2022 Durham County, North Carolina.