Building Summary

Data last updated on: 4/2/2026     Ownership current as of: 3/30/2026     Tax Year: 2026
REID 163087

PIN # 0840-61-3096

Location Address Property Description
3 AZZI CT LAUREL GLEN/PH:01/LT#05A PL:000159-000137
   
Property Owner Owner's Mailing Address
CORTES PAINTING INC
1106 W CORNWALLIS RD STE 104
DURHAM NC 27705
Parcel
Buildings
Misc Improvements
Land
Deeds
Notes
Sales
Photos
Map
Building Location Address
3 AZZI CT
Building Description
RESFR-RES-FRM-OR-EQ
Card   of  1
Bldg Type RESIDENTIAL
Units 1
Living Area (SQFT) 1669
Number of Stories 2.00
Style CON-CONVENTIONAL
Foundation 04-P-FOOTING/CRWL-SP
Exterior 08-VINYL/ALUMINUM
Const Type
Heating 05-PACKAGE-HEAT/COOL
Air Cond
Plumbing Baths (Full):   2
Baths (Half):   1
Extra Fixtures:   0
Total Plumbing Fixtures:   8 
Bedrooms 4
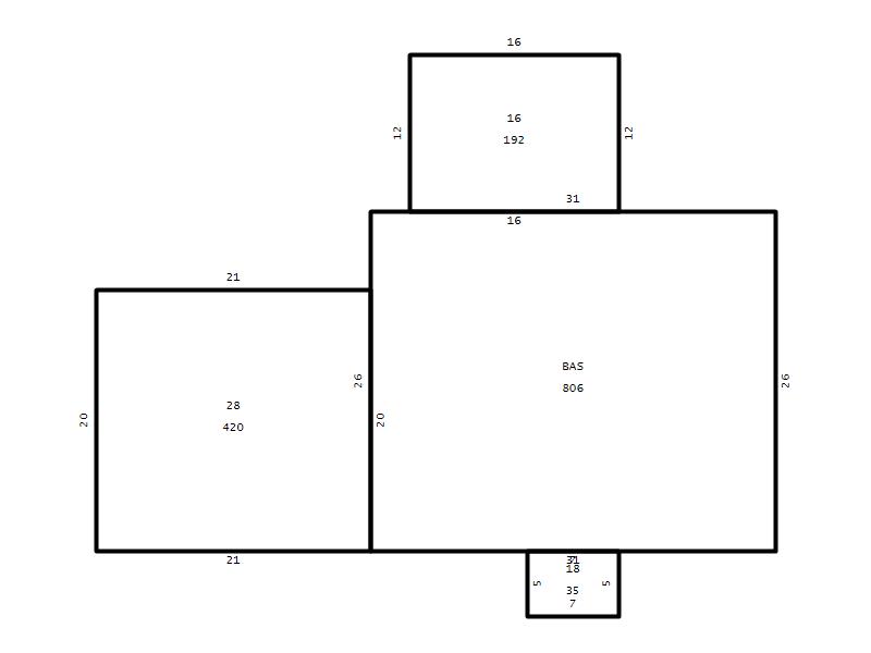
Main Body (SQFT) 806
Year Built 2004
Additions 4
Effective Year 2004
Remodeled 0
Interior Adj.
Other Features
Building Total & Improvement Details

Grade B-10 110%
Percentage Complete 100
Total Adjusted Replacement Cost New $344,754
Physical Depreciation (% Bad) 0%
Depreciated Value $310,279
Economic Depreciation (% Bad) 0%
Functional Depreciation (% Bad) 0%
Total Depreciated Value $310,279
Market Area Factor 1.00
Building Value $310,279
Misc Improvements Value
Total Improvement Value $310,279

Assessed Land Value $112,000
   
Assessed Total Value $422,279



Addition Summary 
StoryTypeCodeArea
1.00 Frame Deck 16 192
1.00 Covered Porch 18 35
1.00 Garage 28 420
1.00 Res Frame 2Nd Flr FR02 863
 
Other Improvements 
 


Building Sketch
Photograph
Building Sketch Building Photo
(Click sketch for bigger image)




Copyright © 2022 Durham County, North Carolina.