Building Summary

Data last updated on: 4/2/2026     Ownership current as of: 3/30/2026     Tax Year: 2026
REID 163116

PIN # 0840-61-4884

Location Address Property Description
1431 BUNGALOW AVE PROP-GEMINI HOMES OF N C CORP/LT#03 PL:000186-000133
   
Property Owner Owner's Mailing Address
KNOTT, MARQUISE
1431 BUNGALOW AVE
DURHAM NC 27703
Parcel
Buildings
Misc Improvements
Land
Deeds
Notes
Sales
Photos
Map
Building Location Address
1431 BUNGALOW AVE
Building Description
RESFR-RES-FRM-OR-EQ
Card   of  1
Bldg Type RESIDENTIAL
Units 1
Living Area (SQFT) 2717
Number of Stories 2.00
Style CAP-CAPE-COD
Foundation 04-P-FOOTING/CRWL-SP
Exterior 08-VINYL/ALUMINUM
Const Type
Heating 05-PACKAGE-HEAT/COOL
Air Cond
Plumbing Baths (Full):   3
Baths (Half):   1
Extra Fixtures:   0
Total Plumbing Fixtures:   11 
Bedrooms 5
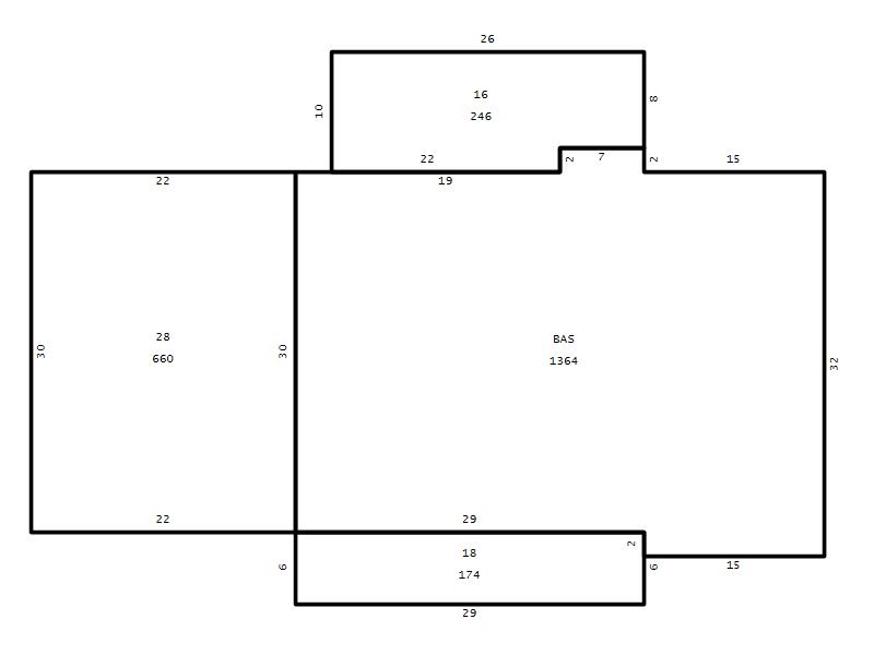
Main Body (SQFT) 1364
Year Built 2011
Additions 5
Effective Year 2011
Remodeled 0
Interior Adj.
Other Features
Building Total & Improvement Details

Grade B 120%
Percentage Complete 100
Total Adjusted Replacement Cost New $535,177
Physical Depreciation (% Bad) 0%
Depreciated Value $460,252
Economic Depreciation (% Bad) 0%
Functional Depreciation (% Bad) 0%
Total Depreciated Value $460,252
Market Area Factor 1.00
Building Value $460,252
Misc Improvements Value
Total Improvement Value $460,252

Assessed Land Value $141,750
   
Assessed Total Value $602,002



Addition Summary 
StoryTypeCodeArea
1.00 Covered Porch 18 174
1.00 Garage 28 660
1.00 Frame Deck 16 246
1.00 Res Frame 2Nd Flr FR02 1023
1.00 Res Frm 2Nd Flr Over Garg FR02 330
 
Other Improvements 
 


Building Sketch
Photograph
Building Sketch Building Photo
(Click sketch for bigger image)




Copyright © 2022 Durham County, North Carolina.