Building Summary

Data last updated on: 4/2/2026     Ownership current as of: 3/30/2026     Tax Year: 2026
REID 163142

PIN # 0840-51-9369

Location Address Property Description
8 ARTIS LN LAUREL GLEN/SEC:A/PH:02/L T#37 PL:000154-000281
   
Property Owner Owner's Mailing Address
RH PARTNERS OWNERCO 2 LLC
3903 S CONGRESS AVE STE 40298
AUSTIN TX 78704
Parcel
Buildings
Misc Improvements
Land
Deeds
Notes
Sales
Photos
Map
Building Location Address
8 ARTIS LN
Building Description
RESFR-RES-FRM-OR-EQ
Card   of  1
Bldg Type RESIDENTIAL
Units 1
Living Area (SQFT) 2132
Number of Stories 2.00
Style CON-CONVENTIONAL
Foundation 04-P-FOOTING/CRWL-SP
Exterior 08-VINYL/ALUMINUM
Const Type
Heating 05-PACKAGE-HEAT/COOL
Air Cond
Plumbing Baths (Full):   2
Baths (Half):   1
Extra Fixtures:   0
Total Plumbing Fixtures:   8 
Bedrooms 4
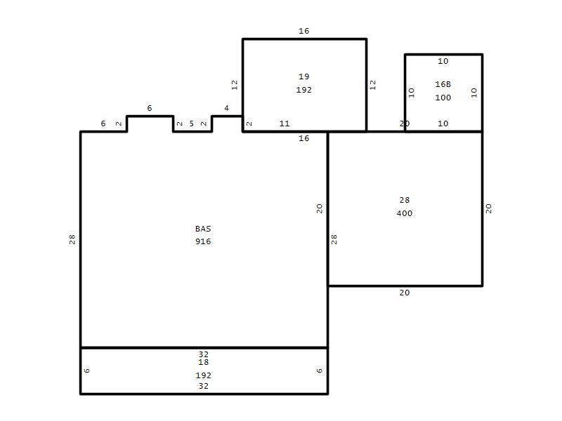
Main Body (SQFT) 916
Year Built 2003
Additions 6
Effective Year 2003
Remodeled 0
Interior Adj.
Other Features
Building Total & Improvement Details

Grade B 120%
Percentage Complete 100
Total Adjusted Replacement Cost New $454,452
Physical Depreciation (% Bad) 0%
Depreciated Value $363,562
Economic Depreciation (% Bad) 0%
Functional Depreciation (% Bad) 0%
Total Depreciated Value $363,562
Market Area Factor 1.00
Building Value $363,562
Misc Improvements Value $337
Total Improvement Value $363,899

Assessed Land Value $112,000
   
Assessed Total Value $475,899



Addition Summary 
StoryTypeCodeArea
1.00 Concrete Slab 16B 100
1.00 Covered Porch 18 192
1.00 Screen Porch 19 192
1.00 Garage 28 400
1.00 Res Frame 2Nd Flr FR02 916
1.00 Res Frm 2Nd Flr Over Garg FR02 300
 
Other Improvements 
UnitsDescriptionItemCodeYear% BadValue
12x12 DIMENSIONS Enclosed Shed 2003 75 337
 


Building Sketch
Photograph
Building Sketch Building Photo
(Click sketch for bigger image)




Copyright © 2022 Durham County, North Carolina.