Building Summary

Data last updated on: 4/2/2026     Ownership current as of: 3/30/2026     Tax Year: 2026
REID 163144

PIN # 0840-51-7381

Location Address Property Description
12 ARTIS LN LAUREL GLEN/SEC:A/PH:02/L T#39A PL:000160-000049
   
Property Owner Owner's Mailing Address
MICHAEL A OCCHIPINTI TRUSTEE;LINDA C OCCHIPINTI TRUSTEE;THE MICHAEL AND LINDA OCCHIPINTI TRUST
3713 EAKLEY CT
RALEIGH NC 27606
Parcel
Buildings
Misc Improvements
Land
Deeds
Notes
Sales
Photos
Map
Building Location Address
12 ARTIS LN
Building Description
RESFR-RES-FRM-OR-EQ
Card   of  1
Bldg Type RESIDENTIAL
Units 1
Living Area (SQFT) 1334
Number of Stories 2.00
Style CON-CONVENTIONAL
Foundation 04-P-FOOTING/CRWL-SP
Exterior 08-VINYL/ALUMINUM
Const Type
Heating 05-PACKAGE-HEAT/COOL
Air Cond
Plumbing Baths (Full):   2
Baths (Half):   1
Extra Fixtures:   0
Total Plumbing Fixtures:   8 
Bedrooms 3
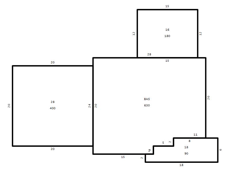
Main Body (SQFT) 630
Year Built 2003
Additions 4
Effective Year 2003
Remodeled 0
Interior Adj.
Other Features
Building Total & Improvement Details

Grade B 120%
Percentage Complete 100
Total Adjusted Replacement Cost New $331,543
Physical Depreciation (% Bad) 0%
Depreciated Value $265,234
Economic Depreciation (% Bad) 0%
Functional Depreciation (% Bad) 0%
Total Depreciated Value $265,234
Market Area Factor 1.00
Building Value $265,234
Misc Improvements Value
Total Improvement Value $265,234

Assessed Land Value $113,750
   
Assessed Total Value $378,984



Addition Summary 
StoryTypeCodeArea
1.00 Frame Deck 16 180
1.00 Covered Porch 18 90
1.00 Garage 28 400
1.00 Res Frame 2Nd Flr FR02 704
 
Other Improvements 
 


Building Sketch
Photograph
Building Sketch Building Photo
(Click sketch for bigger image)




Copyright © 2022 Durham County, North Carolina.