Building Summary

Data last updated on: 4/2/2026     Ownership current as of: 3/30/2026     Tax Year: 2026
REID 163151

PIN # 0840-61-1046

Location Address Property Description
1510 BUNGALOW AVE LAUREL GLEN/PH:01/LT#46 PL:000153-000167
   
Property Owner Owner's Mailing Address
MITCHELL, ALAN GREGORY;MITCHELL, REBECCA LYNN
1510 BUNGALOW AVE
DURHAM NC 27703
Parcel
Buildings
Misc Improvements
Land
Deeds
Notes
Sales
Photos
Map
Building Location Address
1510 BUNGALOW AVE
Building Description
RESFR-RES-FRM-OR-EQ
Card   of  1
Bldg Type RESIDENTIAL
Units 1
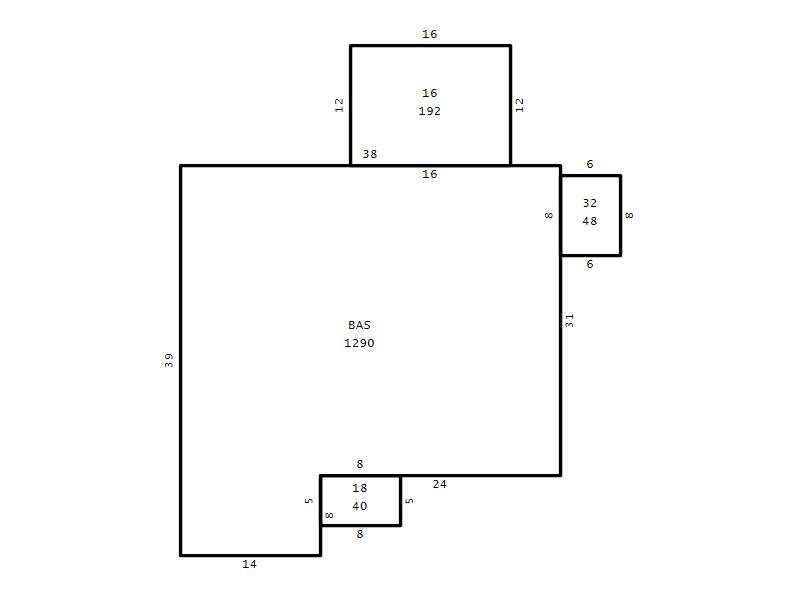
Living Area (SQFT) 1290
Number of Stories 1.00
Style RAN-RANCH
Foundation 04-P-FOOTING/CRWL-SP
Exterior 08-VINYL/ALUMINUM
Const Type
Heating 05-PACKAGE-HEAT/COOL
Air Cond
Plumbing Baths (Full):   2
Baths (Half):   0
Extra Fixtures:   0
Total Plumbing Fixtures:   6 
Bedrooms 3
Main Body (SQFT) 1290
Year Built 2002
Additions 3
Effective Year 2002
Remodeled 0
Interior Adj.
Other Features
Building Total & Improvement Details

Grade B-10 110%
Percentage Complete 100
Total Adjusted Replacement Cost New $271,993
Physical Depreciation (% Bad) 0%
Depreciated Value $214,874
Economic Depreciation (% Bad) 0%
Functional Depreciation (% Bad) 0%
Total Depreciated Value $214,874
Market Area Factor 1.00
Building Value $214,874
Misc Improvements Value
Total Improvement Value $214,874

Assessed Land Value $112,000
   
Assessed Total Value $326,874



Addition Summary 
StoryTypeCodeArea
1.00 Frame Deck 16 192
1.00 Covered Porch 18 40
1.00 Storage Utility 32 48
 
Other Improvements 
 


Building Sketch
Photograph
Building Sketch Building Photo
(Click sketch for bigger image)




Copyright © 2022 Durham County, North Carolina.