Building Summary

Data last updated on: 4/29/2026     Ownership current as of: 4/24/2026     Tax Year: 2026
REID 106485

PIN # 0822-88-1170

Location Address Property Description
809 LEON ST PROP-HAY THOMAS T/LT#04 PL:000025-000024
   
Property Owner Owner's Mailing Address
NTRINSIC INVESTMENTS LLC
1323 QUANDARY LAKE LANE
GRAHAM NC 27253

Value subject to change, property assessment under review

Parcel
Buildings
Misc Improvements
Land
Deeds
Notes
Sales
Photos
Map
Building Location Address
809 LEON ST
Building Description
RESMS-RES-MS-OR-EQ
Card   of  1
Bldg Type RESIDENTIAL
Units 1
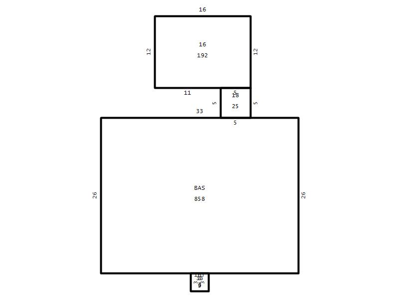
Living Area (SQFT) 858
Number of Stories 1.00
Style RAN-RANCH
Foundation 04-P-FOOTING/CRWL-SP
Exterior 02-BRICK
Const Type
Heating 05-PACKAGE-HEAT/COOL
Air Cond
Plumbing Baths (Full):   1
Baths (Half):   0
Extra Fixtures:   0
Total Plumbing Fixtures:   3 
Bedrooms 2
Main Body (SQFT) 858
Year Built 1952
Additions 3
Effective Year 1952
Remodeled 0
Interior Adj.
Other Features
Building Total & Improvement Details

Grade C- 95%
Percentage Complete 100
Total Adjusted Replacement Cost New
Physical Depreciation (% Bad) 0%
Depreciated Value
Economic Depreciation (% Bad) 0%
Functional Depreciation (% Bad) 0%
Total Depreciated Value
Market Area Factor 1.00
Building Value
Misc Improvements Value
Total Improvement Value

Assessed Land Value
   
Assessed Total Value



Addition Summary 
StoryTypeCodeArea
1.00 Frame Deck 16 192
1.00 Terrace/Raised Patio 16T 9
1.00 Covered Porch 18 25
 
Other Improvements 
 


Building Sketch
Photograph
Building Sketch Building Photo
(Click sketch for bigger image)




Copyright © 2022 Durham County, North Carolina.