Building Summary

Data last updated on: 4/23/2026     Ownership current as of: 4/21/2026     Tax Year: 2026
REID 165212

PIN # 0850-23-5757

Location Address Property Description
1418 SHERRON RD PROP-EVANS LAND PL:000000-000000
   
Property Owner Owner's Mailing Address
HUYNH, THI THANH HANG;NGUYEN, MANH PHUOC
1418 SHERRON RD
DURHAM NC 27703
Parcel
Buildings
Misc Improvements
Land
Deeds
Notes
Sales
Photos
Map
Building Location Address
1418 SHERRON RD
Building Description
RESMS-RES-MS-OR-EQ
Card   of  1
Bldg Type RESIDENTIAL
Units 1
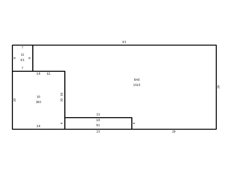
Living Area (SQFT) 1515
Number of Stories 1.00
Style RAN-RANCH
Foundation 04-P-FOOTING/CRWL-SP
Exterior 02-BRICK
Const Type
Heating 05-PACKAGE-HEAT/COOL
Air Cond
Plumbing Baths (Full):   1
Baths (Half):   1
Extra Fixtures:   0
Total Plumbing Fixtures:   5 
Bedrooms 3
Main Body (SQFT) 1515
Year Built 1972
Additions 3
Effective Year 1972
Remodeled 0
Interior Adj.
Other Features
Building Total & Improvement Details

Grade C 100%
Percentage Complete 100
Total Adjusted Replacement Cost New $291,230
Physical Depreciation (% Bad) 0%
Depreciated Value $183,475
Economic Depreciation (% Bad) 0%
Functional Depreciation (% Bad) 0%
Total Depreciated Value $183,475
Market Area Factor 1.00
Building Value $183,475
Misc Improvements Value $1,567
Total Improvement Value $185,042

Assessed Land Value $114,550
   
Assessed Total Value $299,592



Addition Summary 
StoryTypeCodeArea
1.00 Covered Porch 18 92
1.00 Carport 30 360
1.00 Storage Utility 32 63
 
Other Improvements 
UnitsDescriptionItemCodeYear% BadValue
19x10 DIMENSIONS Enclosed Shed 2023 10 1567
 


Building Sketch
Photograph
Building Sketch Building Photo
(Click sketch for bigger image)




Copyright © 2022 Durham County, North Carolina.