Building Summary

Data last updated on: 4/23/2026     Ownership current as of: 4/21/2026     Tax Year: 2026
REID 165351

PIN # 0850-37-6506

Location Address Property Description
4314 HOLDER RD FREEMAN FRST/BLK:A/LT#03 PL:000076-000077
   
Property Owner Owner's Mailing Address
REYES, JENNIFER CAROLINA;POLIO, PABLO ANTONIO RUIZ
4314 HOLDER RD
DURHAM NC 27703
Parcel
Buildings
Misc Improvements
Land
Deeds
Notes
Sales
Photos
Map
Building Location Address
4314 HOLDER RD
Building Description
RESMS-RES-MS-OR-EQ
Card   of  1
Bldg Type RESIDENTIAL
Units 1
Living Area (SQFT) 1421
Number of Stories 1.00
Style RAN-RANCH
Foundation 04-P-FOOTING/CRWL-SP
Exterior 02-BRICK
Const Type
Heating 02-RAD/ELEC/BB/WATR
Air Cond
Plumbing Baths (Full):   2
Baths (Half):   0
Extra Fixtures:   0
Total Plumbing Fixtures:   6 
Bedrooms 3
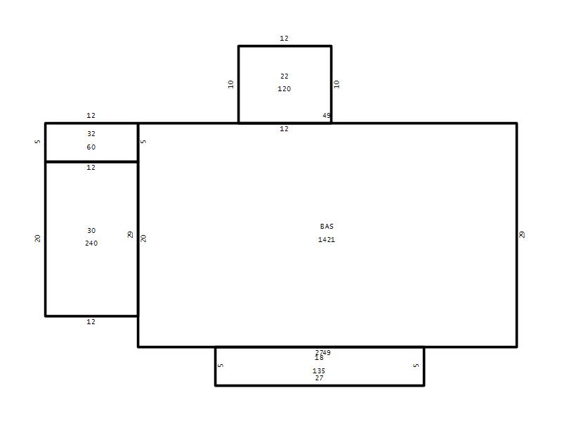
Main Body (SQFT) 1421
Year Built 1976
Additions 4
Effective Year 1976
Remodeled 0
Interior Adj.
Other Features
Building Total & Improvement Details

Grade C- 95%
Percentage Complete 100
Total Adjusted Replacement Cost New $267,737
Physical Depreciation (% Bad) 0%
Depreciated Value $174,029
Economic Depreciation (% Bad) 0%
Functional Depreciation (% Bad) 0%
Total Depreciated Value $174,029
Market Area Factor 1.00
Building Value $174,029
Misc Improvements Value $2,753
Total Improvement Value $176,782

Assessed Land Value $116,725
   
Assessed Total Value $293,507



Addition Summary 
StoryTypeCodeArea
1.00 Covered Porch 18 135
1.00 Enclosed Porch 22 120
1.00 Carport 30 240
1.00 Storage Utility 32 60
 
Other Improvements 
UnitsDescriptionItemCodeYear% BadValue
400 SIZE Prefab Metal Car Shed Enclosed 2017 50 2010
12x24 DIMENSIONS Concrete Slab 1976 70 743
 


Building Sketch
Photograph
Building Sketch Building Photo
(Click sketch for bigger image)




Copyright © 2022 Durham County, North Carolina.