Building Summary

Data last updated on: 4/23/2026     Ownership current as of: 4/21/2026     Tax Year: 2026
REID 165394

PIN # 0850-25-8768

Location Address Property Description
1415 PENNOCK RD PROP-EVERETT & CLAYTON/LT #035-036 PL:000043-000011
   
Property Owner Owner's Mailing Address
FINCH TRAVIS E JR;FINCH RHONDA
1412 PENNOCK RD
DURHAM NC 27703
Parcel
Buildings
Misc Improvements
Land
Deeds
Notes
Sales
Photos
Map
Building Location Address
1415 PENNOCK RD
Building Description
RESFR-RES-FRM-OR-EQ
Card   of  1
Bldg Type RESIDENTIAL
Units 1
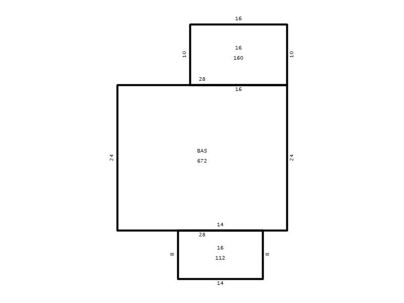
Living Area (SQFT) 672
Number of Stories 1.00
Style RAN-RANCH
Foundation 04-P-FOOTING/CRWL-SP
Exterior 09-HARD-B/CEMENTBRD
Const Type
Heating 04-UNIT-HEAT
Air Cond
Plumbing Baths (Full):   1
Baths (Half):   0
Extra Fixtures:   0
Total Plumbing Fixtures:   3 
Bedrooms 2
Main Body (SQFT) 672
Year Built 1968
Additions 2
Effective Year 1968
Remodeled 0
Interior Adj.
Other Features
Building Total & Improvement Details

Grade D+ 85%
Percentage Complete 100
Total Adjusted Replacement Cost New $128,912
Physical Depreciation (% Bad) 0%
Depreciated Value $78,636
Economic Depreciation (% Bad) 0%
Functional Depreciation (% Bad) 0%
Total Depreciated Value $78,636
Market Area Factor 1.00
Building Value $78,636
Misc Improvements Value
Total Improvement Value $78,636

Assessed Land Value $105,125
   
Assessed Total Value $183,761



Addition Summary 
StoryTypeCodeArea
1.00 Frame Deck 16 112
1.00 Frame Deck 16 160
 
Other Improvements 
UnitsDescriptionItemCodeYear% BadValue
120 SIZE Shed Personal Property 1968 75
 


Building Sketch
Photograph
Building Sketch Building Photo
(Click sketch for bigger image)




Copyright © 2022 Durham County, North Carolina.