Building Summary

Data last updated on: 4/2/2026     Ownership current as of: 3/30/2026     Tax Year: 2026
REID 165445

PIN # 0851-41-5506

Location Address Property Description
4000 WAKE FOREST HWY PROP-FLETCHER F W/LT#05 PL:000050-000008
   
Property Owner Owner's Mailing Address
MILAN, MICHAEL
4000 WAKE FOREST RD
DURHAM NC 27703
Parcel
Buildings
Misc Improvements
Land
Deeds
Notes
Sales
Photos
Map
Building Location Address
4000 WAKE FOREST HWY
Building Description
RESFR-RES-FRM-OR-EQ
Card   of  1
Bldg Type RESIDENTIAL
Units 1
Living Area (SQFT) 2259
Number of Stories 2.00
Style CAP-CAPE-COD
Foundation 04-P-FOOTING/CRWL-SP
Exterior 09-HARD-B/CEMENTBRD
Const Type
Heating 05-PACKAGE-HEAT/COOL
Air Cond
Plumbing Baths (Full):   1
Baths (Half):   0
Extra Fixtures:   0
Total Plumbing Fixtures:   3 
Bedrooms 2
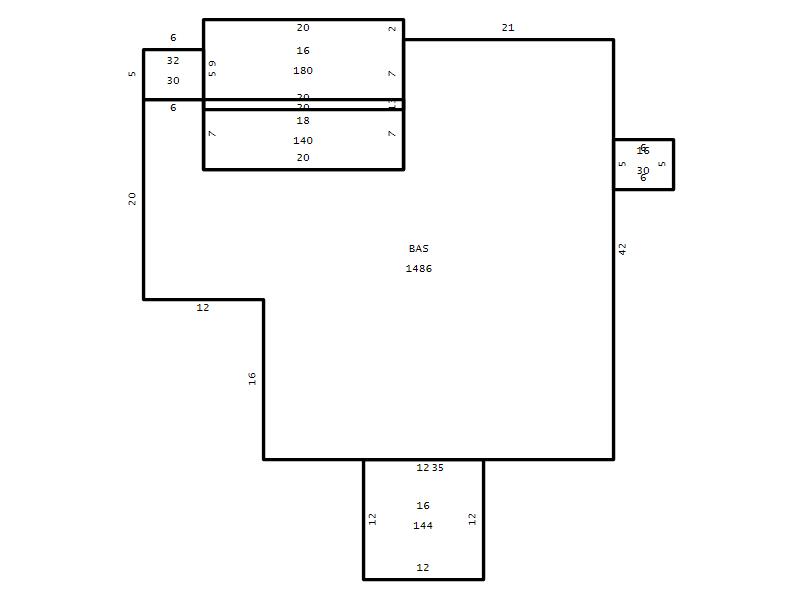
Main Body (SQFT) 1486
Year Built 1940
Additions 6
Effective Year 1940
Remodeled 0
Interior Adj.
Other Features
Building Total & Improvement Details

Grade C 100%
Percentage Complete 100
Total Adjusted Replacement Cost New $365,480
Physical Depreciation (% Bad) 0%
Depreciated Value $237,562
Economic Depreciation (% Bad) 0%
Functional Depreciation (% Bad) 0%
Total Depreciated Value $237,562
Market Area Factor 1.00
Building Value $237,562
Misc Improvements Value $16,898
Total Improvement Value $254,460

Assessed Land Value $123,975
   
Assessed Total Value $378,435



Addition Summary 
StoryTypeCodeArea
1.00 Frame Deck 16 180
1.00 Covered Porch 18 140
1.00 Storage Utility 32 30
1.00 Frame Deck 16 144
1.00 Frame Deck 16 30
1.00 Res Frame 2Nd Flr FR02 773
 
Other Improvements 
UnitsDescriptionItemCodeYear% BadValue
576 SIZE Garage Frame 1998 45 16898
 


Building Sketch
Photograph
Building Sketch Building Photo
(Click sketch for bigger image)




Copyright © 2022 Durham County, North Carolina.