Building Summary

Data last updated on: 4/2/2026     Ownership current as of: 3/30/2026     Tax Year: 2026
REID 165447

PIN # 0851-41-7523

Location Address Property Description
4004 WAKE FOREST HWY PROP-FLETCHER F W/LT#03 PL:000030-000081
   
Property Owner Owner's Mailing Address
RICHARDSON, TIMOTHY;WINSTON, SADE
4004 WAKE FOREST HWY
DURHAM NC 27703
Parcel
Buildings
Misc Improvements
Land
Deeds
Notes
Sales
Photos
Map
Building Location Address
4004 WAKE FOREST HWY
Building Description
RESMS-RES-MS-OR-EQ
Card   of  1
Bldg Type RESIDENTIAL
Units 1
Living Area (SQFT) 2162
Number of Stories 1.00
Style BTS-BI/TRI/SPLT-LEVL
Foundation 04-P-FOOTING/CRWL-SP
Exterior 02-BRICK
Const Type
Heating 05-PACKAGE-HEAT/COOL
Air Cond
Plumbing Baths (Full):   1
Baths (Half):   1
Extra Fixtures:   0
Total Plumbing Fixtures:   5 
Bedrooms 3
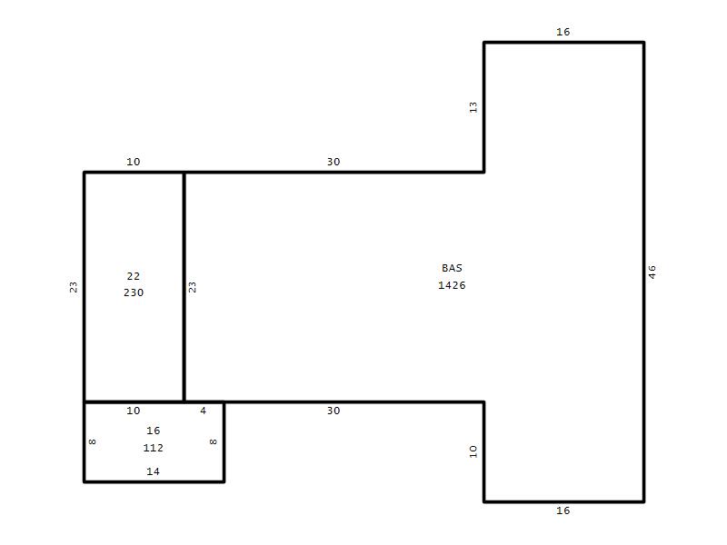
Main Body (SQFT) 1426
Year Built 1956
Additions 3
Effective Year 1956
Remodeled 0
Interior Adj.
Other Features
Building Total & Improvement Details

Grade C 100%
Percentage Complete 100
Total Adjusted Replacement Cost New $338,613
Physical Depreciation (% Bad) 0%
Depreciated Value $220,098
Economic Depreciation (% Bad) 0%
Functional Depreciation (% Bad) 0%
Total Depreciated Value $220,098
Market Area Factor 1.00
Building Value $220,098
Misc Improvements Value
Total Improvement Value $220,098

Assessed Land Value $99,325
   
Assessed Total Value $319,423



Addition Summary 
StoryTypeCodeArea
1.00 Frame Deck 16 112
1.00 Enclosed Porch 22 230
1.00 Finished Basement 14 736
 
Other Improvements 
 


Building Sketch
Photograph
Building Sketch Building Photo
(Click sketch for bigger image)




Copyright © 2022 Durham County, North Carolina.