Building Summary

Data last updated on: 4/2/2026     Ownership current as of: 3/30/2026     Tax Year: 2026
REID 165448

PIN # 0851-41-8418

Location Address Property Description
4008 WAKE FOREST HWY PROP-FLETCHER F W/PROP-NI CHOLS AND CASH/LT#01 PL:000154-000231
   
Property Owner Owner's Mailing Address
BAF ASSETS 2 LLC
3903 S CONGRESS AVE STE 40298
AUSTIN TX 78704
Parcel
Buildings
Misc Improvements
Land
Deeds
Notes
Sales
Photos
Map
Building Location Address
4008 WAKE FOREST HWY
Building Description
RESFR-RES-FRM-OR-EQ
Card   of  1
Bldg Type RESIDENTIAL
Units 1
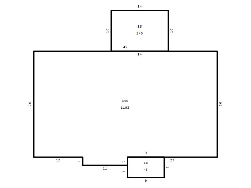
Living Area (SQFT) 1192
Number of Stories 1.00
Style RAN-RANCH
Foundation 04-P-FOOTING/CRWL-SP
Exterior 08-VINYL/ALUMINUM
Const Type
Heating 06-HEAT-PUMP
Air Cond
Plumbing Baths (Full):   2
Baths (Half):   0
Extra Fixtures:   0
Total Plumbing Fixtures:   6 
Bedrooms 3
Main Body (SQFT) 1192
Year Built 2002
Additions 2
Effective Year 2002
Remodeled 0
Interior Adj.
Other Features
Building Total & Improvement Details

Grade C 100%
Percentage Complete 100
Total Adjusted Replacement Cost New $223,681
Physical Depreciation (% Bad) 0%
Depreciated Value $176,708
Economic Depreciation (% Bad) 0%
Functional Depreciation (% Bad) 0%
Total Depreciated Value $176,708
Market Area Factor 1.00
Building Value $176,708
Misc Improvements Value $2,297
Total Improvement Value $179,005

Assessed Land Value $108,750
   
Assessed Total Value $287,755



Addition Summary 
StoryTypeCodeArea
1.00 Frame Deck 16 140
1.00 Covered Porch 18 45
 
Other Improvements 
UnitsDescriptionItemCodeYear% BadValue
188 SIZE Storage Building 2015 50 2297
 


Building Sketch
Photograph
Building Sketch Building Photo
(Click sketch for bigger image)




Copyright © 2022 Durham County, North Carolina.