Building Summary

Data last updated on: 4/2/2026     Ownership current as of: 3/30/2026     Tax Year: 2026
REID 165488

PIN # 0850-38-9580

Location Address Property Description
715 SOUTHSHORE PKWY GROVE PARK/SOUTHSHORE/SEC :04/PH:02/LT#256 PL:000149-000157
   
Property Owner Owner's Mailing Address
HOLLEY, MARGARITA D
715 SOUTHSHORE PKWY
DURHAM NC 27703
Parcel
Buildings
Misc Improvements
Land
Deeds
Notes
Sales
Photos
Map
Building Location Address
715 SOUTHSHORE PKWY
Building Description
RESFR-RES-FRM-OR-EQ
Card   of  1
Bldg Type RESIDENTIAL
Units 1
Living Area (SQFT) 2345
Number of Stories 2.00
Style CON-CONVENTIONAL
Foundation 03-CONTINOUS-SLAB
Exterior 09-HARD-B/CEMENTBRD
Const Type
Heating 05-PACKAGE-HEAT/COOL
Air Cond
Plumbing Baths (Full):   2
Baths (Half):   1
Extra Fixtures:   0
Total Plumbing Fixtures:   8 
Bedrooms 3
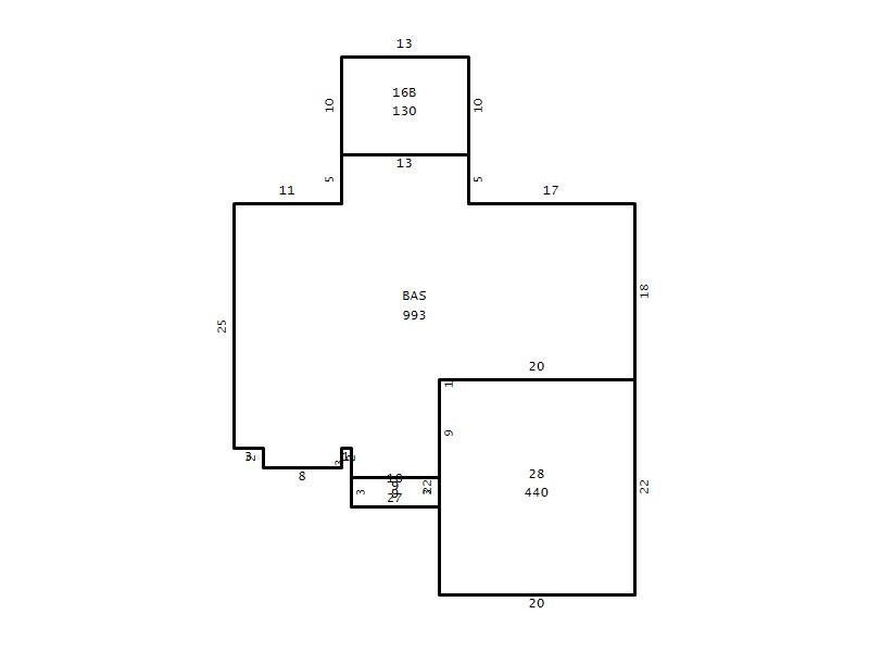
Main Body (SQFT) 993
Year Built 2003
Additions 5
Effective Year 2003
Remodeled 0
Interior Adj.
Other Features
Building Total & Improvement Details

Grade B+5 125%
Percentage Complete 100
Total Adjusted Replacement Cost New $466,977
Physical Depreciation (% Bad) 0%
Depreciated Value $373,582
Economic Depreciation (% Bad) 0%
Functional Depreciation (% Bad) 0%
Total Depreciated Value $373,582
Market Area Factor 1.00
Building Value $373,582
Misc Improvements Value
Total Improvement Value $373,582

Assessed Land Value $65,840
   
Assessed Total Value $439,422



Addition Summary 
StoryTypeCodeArea
1.00 Concrete Slab 16B 130
1.00 Covered Porch 18 27
1.00 Garage 28 440
1.00 Res Frame 2Nd Flr FR02 912
1.00 Res Frm 2Nd Flr Over Garg FR02 440
 
Other Improvements 
 


Building Sketch
Photograph
Building Sketch Building Photo
(Click sketch for bigger image)




Copyright © 2022 Durham County, North Carolina.