Building Summary

Data last updated on: 4/23/2026     Ownership current as of: 4/21/2026     Tax Year: 2026
REID 165504

PIN # 0850-47-5600

Location Address Property Description
4413 HOLDER RD FREEMAN FOREST/BLK:A/LT#0 7 PL:000000-000000
   
Property Owner Owner's Mailing Address
CRUZ, BLANCA ESTELA SANTIAGO
1325 PENNOCK RD
DURHAM NC 27703
Parcel
Buildings
Misc Improvements
Land
Deeds
Notes
Sales
Photos
Map
Building Location Address
4413 HOLDER RD
Building Description
MANUF-MH-MULTI
Card   of  1
Bldg Type RESIDENTIAL
Units 1
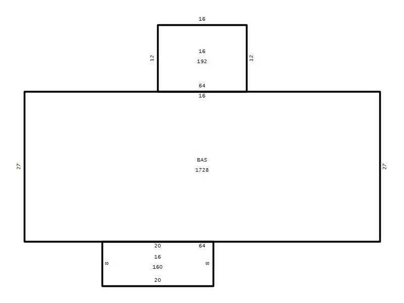
Living Area (SQFT) 1728
Number of Stories 1.00
Style MMW-MANU-H-MULT-WIDE
Foundation 04-P-FOOTING/CRWL-SP
Exterior 08-VINYL/ALUMINUM
Const Type
Heating 08-MOBILE-H-COOLING
Air Cond
Plumbing Baths (Full):   1
Baths (Half):   0
Extra Fixtures:   0
Total Plumbing Fixtures:   3 
Bedrooms 3
Main Body (SQFT) 1728
Year Built 1995
Additions 2
Effective Year 1995
Remodeled 0
Interior Adj.
Other Features
Building Total & Improvement Details

Grade C- 95%
Percentage Complete 100
Total Adjusted Replacement Cost New $173,504
Physical Depreciation (% Bad) 0%
Depreciated Value $111,043
Economic Depreciation (% Bad) 0%
Functional Depreciation (% Bad) 0%
Total Depreciated Value $111,043
Market Area Factor 1.00
Building Value $111,043
Misc Improvements Value $17,205
Total Improvement Value $128,248

Assessed Land Value $122,525
   
Assessed Total Value $250,773



Addition Summary 
StoryTypeCodeArea
1.00 Frame Deck 16 192
1.00 Frame Deck 16 160
 
Other Improvements 
UnitsDescriptionItemCodeYear% BadValue
24x28 DIMENSIONS Garage Frame 1995 50 17205
 


Building Sketch
Photograph
Building Sketch Building Photo
(Click sketch for bigger image)




Copyright © 2022 Durham County, North Carolina.