Building Summary

Data last updated on: 4/2/2026     Ownership current as of: 3/30/2026     Tax Year: 2026
REID 165550

PIN # 0851-50-3561

Location Address Property Description
1 KINGS GRANT CT GROVE PARK/SEC:01/PH:01/L T#20 PL:000118-000163
   
Property Owner Owner's Mailing Address
MINOR, BRENDEN SCOTT
1 KINGS GRANT CT
DURHAM NC 27703
Parcel
Buildings
Misc Improvements
Land
Deeds
Notes
Sales
Photos
Map
Building Location Address
1 KINGS GRANT CT
Building Description
RESFR-RES-FRM-OR-EQ
Card   of  1
Bldg Type RESIDENTIAL
Units 1
Living Area (SQFT) 2030
Number of Stories 2.00
Style COL-COLONIAL
Foundation 04-P-FOOTING/CRWL-SP
Exterior 09-HARD-B/CEMENTBRD
Const Type
Heating 05-PACKAGE-HEAT/COOL
Air Cond
Plumbing Baths (Full):   2
Baths (Half):   1
Extra Fixtures:   0
Total Plumbing Fixtures:   8 
Bedrooms 3
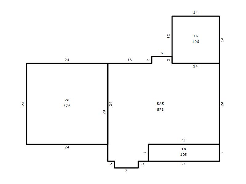
Main Body (SQFT) 878
Year Built 1988
Additions 5
Effective Year 1988
Remodeled 0
Interior Adj.
Other Features
Building Total & Improvement Details

Grade B+5 125%
Percentage Complete 100
Total Adjusted Replacement Cost New $465,941
Physical Depreciation (% Bad) 0%
Depreciated Value $330,818
Economic Depreciation (% Bad) 0%
Functional Depreciation (% Bad) 0%
Total Depreciated Value $330,818
Market Area Factor 1.00
Building Value $330,818
Misc Improvements Value
Total Improvement Value $330,818

Assessed Land Value $63,268
   
Assessed Total Value $394,086



Addition Summary 
StoryTypeCodeArea
1.00 Frame Deck 16 196
1.00 Covered Porch 18 105
1.00 Garage 28 576
1.00 Res Frame 2Nd Flr FR02 864
1.00 Res Frm 2Nd Flr Over Garg FR02 288
 
Other Improvements 
 


Building Sketch
Photograph
Building Sketch Building Photo
(Click sketch for bigger image)




Copyright © 2022 Durham County, North Carolina.