Building Summary

Data last updated on: 4/2/2026     Ownership current as of: 3/30/2026     Tax Year: 2026
REID 165619

PIN # 0850-59-8425

Location Address Property Description
3 HAROLD KEEN CT GROVE PARK/SEC:03/PH:01/L T#110 PL:000121-000012
   
Property Owner Owner's Mailing Address
TURNER, TIMOTHY;TURNER, JEANNE
3 HAROLD KEEN CT
DURHAM NC 27703
Parcel
Buildings
Misc Improvements
Land
Deeds
Notes
Sales
Photos
Map
Building Location Address
3 HAROLD KEEN CT
Building Description
RESFR-RES-FRM-OR-EQ
Card   of  1
Bldg Type RESIDENTIAL
Units 1
Living Area (SQFT) 2800
Number of Stories 2.00
Style COL-COLONIAL
Foundation 04-P-FOOTING/CRWL-SP
Exterior 09-HARD-B/CEMENTBRD
Const Type
Heating 05-PACKAGE-HEAT/COOL
Air Cond
Plumbing Baths (Full):   2
Baths (Half):   1
Extra Fixtures:   0
Total Plumbing Fixtures:   8 
Bedrooms 4
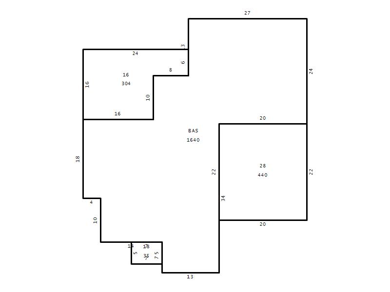
Main Body (SQFT) 1640
Year Built 1989
Additions 5
Effective Year 1989
Remodeled 0
Interior Adj.
Other Features
Building Total & Improvement Details

Grade B+5 125%
Percentage Complete 100
Total Adjusted Replacement Cost New $546,382
Physical Depreciation (% Bad) 0%
Depreciated Value $393,395
Economic Depreciation (% Bad) 0%
Functional Depreciation (% Bad) 0%
Total Depreciated Value $393,395
Market Area Factor 1.00
Building Value $393,395
Misc Improvements Value
Total Improvement Value $393,395

Assessed Land Value $71,498
   
Assessed Total Value $464,893



Addition Summary 
StoryTypeCodeArea
1.00 Frame Deck 16 304
1.00 Covered Porch 18 35
1.00 Garage 28 440
1.00 Res Frame 2Nd Flr FR02 992
1.00 Res Frm 2Nd Flr Over Garg FR02 168
 
Other Improvements 
 


Building Sketch
Photograph
Building Sketch Building Photo
(Click sketch for bigger image)




Copyright © 2022 Durham County, North Carolina.