Building Summary

Data last updated on: 4/2/2026     Ownership current as of: 3/30/2026     Tax Year: 2026
REID 165706

PIN # 0850-57-0574

Location Address Property Description
16 VESTRIAL LN GROVE PARK/SEC:08A/PH:01/ LT#173 PL:000122-000104
   
Property Owner Owner's Mailing Address
HESSELINK, NATHAN LEO;COPENHAVER, ALEXANDRA JEAN
16 VESTRIAL LN
DURHAM NC 27703
Parcel
Buildings
Misc Improvements
Land
Deeds
Notes
Sales
Photos
Map
Building Location Address
16 VESTRIAL LN
Building Description
RESFR-RES-FRM-OR-EQ
Card   of  1
Bldg Type RESIDENTIAL
Units 1
Living Area (SQFT) 2354
Number of Stories 2.00
Style COL-COLONIAL
Foundation 03-CONTINOUS-SLAB
Exterior 09-HARD-B/CEMENTBRD
Const Type
Heating 05-PACKAGE-HEAT/COOL
Air Cond
Plumbing Baths (Full):   3
Baths (Half):   0
Extra Fixtures:   0
Total Plumbing Fixtures:   9 
Bedrooms 4
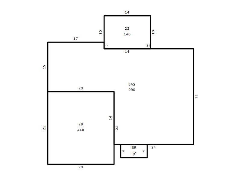
Main Body (SQFT) 990
Year Built 1996
Additions 5
Effective Year 1996
Remodeled 0
Interior Adj.
Other Features
Building Total & Improvement Details

Grade B+5 125%
Percentage Complete 100
Total Adjusted Replacement Cost New $483,174
Physical Depreciation (% Bad) 0%
Depreciated Value $362,380
Economic Depreciation (% Bad) 0%
Functional Depreciation (% Bad) 0%
Total Depreciated Value $362,380
Market Area Factor 1.00
Building Value $362,380
Misc Improvements Value
Total Improvement Value $362,380

Assessed Land Value $67,898
   
Assessed Total Value $430,278



Addition Summary 
StoryTypeCodeArea
1.00 Covered Porch 18 32
1.00 Enclosed Porch 22 140
1.00 Garage 28 440
1.00 Res Frame 2Nd Flr FR02 1044
1.00 Res Frm 2Nd Flr Over Garg FR02 320
 
Other Improvements 
 


Building Sketch
Photograph
Building Sketch Building Photo
(Click sketch for bigger image)




Copyright © 2022 Durham County, North Carolina.