Building Summary

Data last updated on: 4/2/2026     Ownership current as of: 3/30/2026     Tax Year: 2026
REID 165794

PIN # 0850-38-2711

Location Address Property Description
128 LEACROFT WAY GROVE PRK BELLMEADE/PH:02 /SEC:09/LT#413 PL:000137-000127
   
Property Owner Owner's Mailing Address
BACHER, PATRICK THOMAS;STANGE-BACHER, KAYLA ELIZABETH
128 LEACROFT WAY
DURHAM NC 27703
Parcel
Buildings
Misc Improvements
Land
Deeds
Notes
Sales
Photos
Map
Building Location Address
128 LEACROFT WAY
Building Description
RESFR-RES-FRM-OR-EQ
Card   of  1
Bldg Type RESIDENTIAL
Units 1
Living Area (SQFT) 1665
Number of Stories 2.00
Style CON-CONVENTIONAL
Foundation 03-CONTINOUS-SLAB
Exterior 09-HARD-B/CEMENTBRD
Const Type
Heating 05-PACKAGE-HEAT/COOL
Air Cond
Plumbing Baths (Full):   2
Baths (Half):   1
Extra Fixtures:   0
Total Plumbing Fixtures:   8 
Bedrooms 4
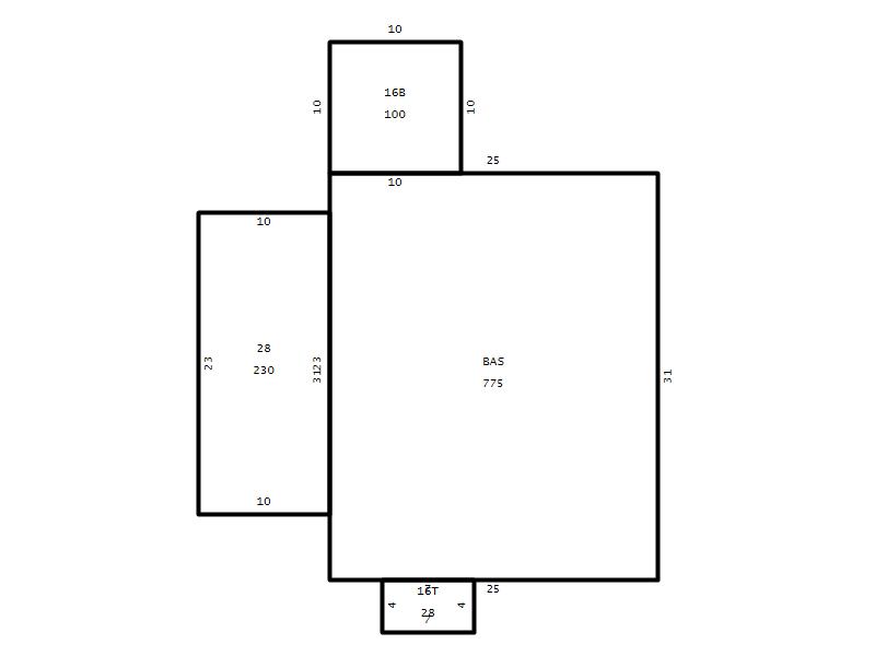
Main Body (SQFT) 775
Year Built 1997
Additions 5
Effective Year 1997
Remodeled 0
Interior Adj.
Other Features
Building Total & Improvement Details

Grade B+5 125%
Percentage Complete 100
Total Adjusted Replacement Cost New $361,304
Physical Depreciation (% Bad) 0%
Depreciated Value $274,591
Economic Depreciation (% Bad) 0%
Functional Depreciation (% Bad) 0%
Total Depreciated Value $274,591
Market Area Factor 1.00
Building Value $274,591
Misc Improvements Value
Total Improvement Value $274,591

Assessed Land Value $62,754
   
Assessed Total Value $337,345



Addition Summary 
StoryTypeCodeArea
1.00 Concrete Slab 16B 100
1.00 Terrace/Raised Patio 16T 28
1.00 Garage 28 230
1.00 Res Frame 2Nd Flr FR02 775
1.00 Res Frm 2Nd Flr Over Garg FR02 115
 
Other Improvements 
 


Building Sketch
Photograph
Building Sketch Building Photo
(Click sketch for bigger image)




Copyright © 2022 Durham County, North Carolina.