Building Summary

Data last updated on: 4/2/2026     Ownership current as of: 3/30/2026     Tax Year: 2026
REID 165892

PIN # 0850-49-0828

Location Address Property Description
324 NORTH WATERS EDGE DR GROVE PARK/WATERS EDGE/SE C:06/LT#463 PL:000139-000090
   
Property Owner Owner's Mailing Address
DICKINSON, DONNA;DICKINSON, EDWARD
324 NORTH WATERS EDGE DR
DURHAM NC 27703
Parcel
Buildings
Misc Improvements
Land
Deeds
Notes
Sales
Photos
Map
Building Location Address
324 NORTH WATERS EDGE DR
Building Description
RESFR-RES-FRM-OR-EQ
Card   of  1
Bldg Type RESIDENTIAL
Units 1
Living Area (SQFT) 2232
Number of Stories 2.00
Style CON-CONVENTIONAL
Foundation 03-CONTINOUS-SLAB
Exterior 09-HARD-B/CEMENTBRD
Const Type
Heating 05-PACKAGE-HEAT/COOL
Air Cond
Plumbing Baths (Full):   2
Baths (Half):   1
Extra Fixtures:   0
Total Plumbing Fixtures:   8 
Bedrooms 4
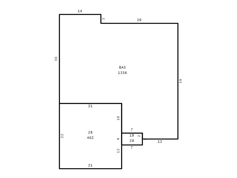
Main Body (SQFT) 1336
Year Built 2001
Additions 5
Effective Year 2001
Remodeled 0
Interior Adj.
Other Features
Building Total & Improvement Details

Grade B+5 125%
Percentage Complete 100
Total Adjusted Replacement Cost New $464,010
Physical Depreciation (% Bad) 0%
Depreciated Value $361,928
Economic Depreciation (% Bad) 0%
Functional Depreciation (% Bad) 0%
Total Depreciated Value $361,928
Market Area Factor 1.00
Building Value $361,928
Misc Improvements Value
Total Improvement Value $361,928

Assessed Land Value $59,153
   
Assessed Total Value $421,081



Addition Summary 
StoryTypeCodeArea
1.00 Covered Porch 18 28
1.00 Garage 28 462
1.00 Res Frame 2Nd Flr FR02 434
1.00 Res Frm 2Nd Flr Over Garg FR02 462
1.00 Attic Unfinished 08 126
 
Other Improvements 
 


Building Sketch
Photograph
Building Sketch Building Photo
(Click sketch for bigger image)




Copyright © 2022 Durham County, North Carolina.